Architecture

23-11-2022

Photographer : Spaceshift Studio

TROP Office is a landscape designers' office located around the Ladprao area, Bangkok. It started from the idea of a new adjacent working box next to the old office building to expand the office space. The architect conveys the character of the office by portraying it through the building's form and space. The white empty box filled out with function and landscapes harmoniously reveals the main protagonist of the building which is nature.

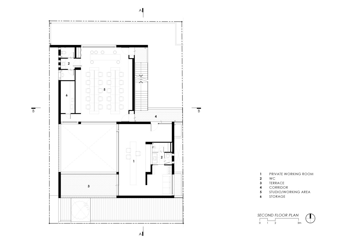
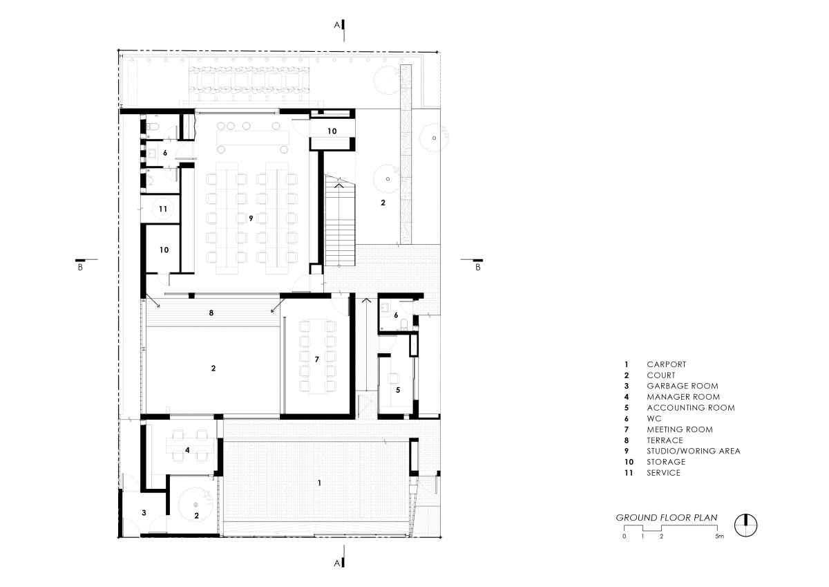
The box contains of a 3-Storey building with 4 parts of the function. The first part is the public areas of working, meetings, and recreation. The second is a Private working room. The next part is an area for a garden and soft landscape and the last one is the main circulation connecting all spaces together. 

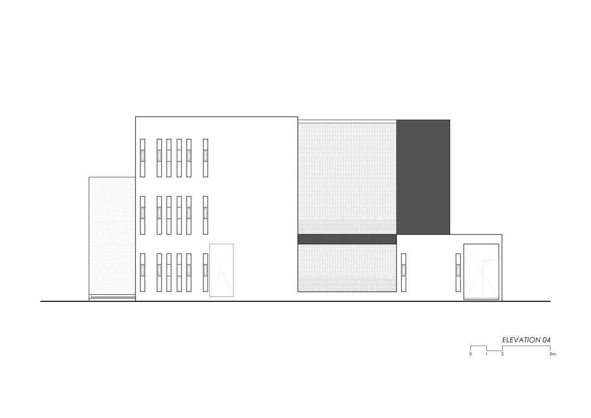
The place represents simplicity with the non-materialistic finishing of walls and floors. The space is filled by part of the boxes with plain and void. The building maintains the user’s privacy without depriving the connection with the environment. Bricks were chosen as the main material for integrating architecture and landscape. Nevertheless, nature is designed to become part of the building with void working as a light well allowing natural elements including light and ventilation to illuminate and flow throughout the whole space. The variation of shade and shadow caused by the penetration of natural light through the façade becomes part of the interior space which will be shifted throughout day.

Bangkok,Thailand

Architects : Junsekino Architect and Design
Area : 740 sq.m.
Year of Completion : 2020
Website : junsekino.com

In overall of the design, the architecture is not only a place but also the flexible background for variety of people's gesture and imagination




Most Visited Articles




Subscribe

Get our latest article and updates delivered straight to your inbox.