Architecture

12-12-2025

Photographer : Vinay Panjwani

Text provided by Architect

Nestled in the urban fabric of Surat, Gujarat, Twin House by Design Work Group (DWG) is a compelling architectural response to the evolving dynamics of contemporary Indian living. Conceptualized as a residence for two sibling families, the project embodies a layered interpretation of duality—independence and togetherness, rawness and warmth, monolith and lightness. It celebrates the ethos of familial bonds while embracing modernist design sensibilities rooted in material honesty, minimalism, and spatial harmony.

The client’s vision was deeply personal—two independent homes sharing a singular plot, connected not merely by walls but by a shared sense of belonging. The architectural brief called for a delicate balance: preserving privacy while cultivating opportunities for connection. DWG translated this into a pair of interconnected yet distinct bungalows, connected via a common deck and dining pavilion that serves as the symbolic and spatial heart of the residence.

This spatial gesture—Transitional space between the two volumes—establishes a common space where both families engage in daily rituals, festivities, and moments of pause. It is a recrafted courtyard of sorts, offering permeability without intrusion, where architecture becomes the quiet facilitator of familial dialogue.

Materiality was central to the design narrative. The client had a clear affinity for exposed reinforced concrete (RCC)—a desire rooted in admiration for simplicity, structural purity. DWG embraced this vision, elevating it through craftsmanship and precision. The monolithic concrete façades emerge as sculptural statements, their rawness evoking permanence and strength. Yet, this brutalist gesture is thoughtfully tempered by the tactile elegance of natural wood—Applied through soffits, furnishings, and intricate detailing, it lends the interiors a sense of warmth and sensory depth.

Surat,Gujarat,India

Architects : Design Work Group
Area : 16899.34 sq. ft.
Year of Completion : 2024
Website : https://www.instagram.com/designworkgroup/

Exterior view of Twin House by Design Work Group

The architecture adheres to a minimalist vocabulary: clean lines, cubic forms, and geometric clarity define the external silhouette. Internally, the spaces unfold with seamless spatial transitions. The design resists excess and ornamentation, relying instead on proportion, light, and materials to evoke character. Contrasting textures—cool concrete, warm timber, and smooth Italian stone—shape a spatial balance that is at once refined and elemental, forming the essence of Twin House’s identity.

The architectural strategy redefines multi-generational living by breaking away from traditional typologies of joint families housed under one roof. Instead, it proposes a new model of cohabitation—one that enables functional independence while subtly choreographing opportunities for organic interaction. Each home is planned as a standalone unit, complete with private bedrooms, living areas, and service zones. However, through carefully considered openings, framed views, and semi-open connectors, the two homes maintain a visual and spatial link. The shared deck and dining zone function as In-between spaces—neither entirely private nor public—acting as buffer zones that unify rather than divide.


Exterior view of Twin House by Design Work Group


Courtyard of Twin House by Design Work Group


Courtyard of Twin House by Design Work Group

Circulation is Organized in a way that transitions between spaces feel intuitive and gentle. The homes are layered vertically and horizontally to maximize both connectivity and seclusion where needed. This refined orchestration of movement and threshold exemplifies the project’s deep understanding of human behavior, family dynamics, and architectural psychology.

At its essence, Twin House is a contemporary interpretation of Indian familial life—one that respects tradition while embracing modernity. The project is an architectural response to changing societal values, where families seek both connection and independence, and where material expression is not merely decorative but deeply embedded in experience and performance.


Living room of Twin House by Design Work Group


Dining of Twin House by Design Work Group


Staircase of Twin House by Design Work Group

Through Twin House, Design Work Group proposes an architectural language that is at once local and global—rooted in material culture, spatial intelligence, and emotional resonance. It is a home that grows with its inhabitants, adapts to their rhythms, and reflects the enduring bonds that tie individuals together—quietly, beautifully, and with timeless sophistication.


Chandelier of Twin House by Design Work Group


Bedroom of Twin House by Design Work Group


Bedroom 2 of Twin House by Design Work Group


Deck Area of Twin House by Design Work Group


Balcony of Twin House by Design Work Group


Balcony of Twin House by Design Work Group


Dusk light exterior view of Twin House by Design Work Group


Aerial view of Twin House by Design Work Group


Ground Floor Plan of Twin House by Design Work Group


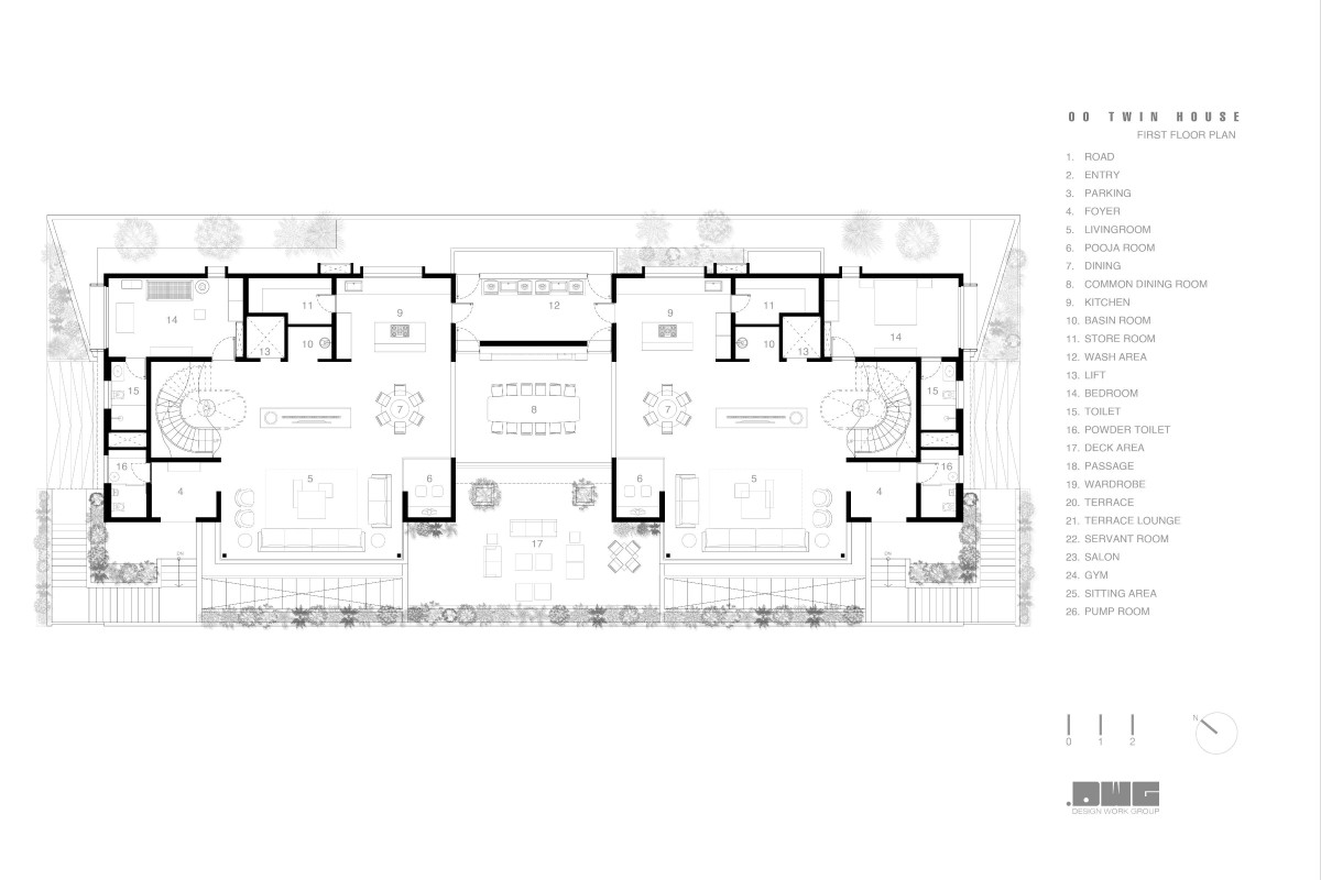
First Floor Plan of Twin House by Design Work Group


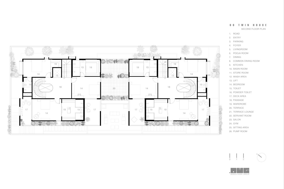
Second Floor Plan of Twin House by Design Work Group


Terrace Plan of Twin House by Design Work Group


Section of Twin House by Design Work Group




Most Visited Articles




Subscribe

Get our latest article and updates delivered straight to your inbox.