Architecture

29-04-2026

Photographer : OUTLINED Photography

Text provided by Architect

The House Vriksham srira (விருக்ஷம் ஸ்ரீரா) is a compact, inward-looking residence designed on a 1,300 sq.ft east-facing corner plot overlooking the backwaters near the Muttukadu Boat House, Chennai. 

The project responds to a clearly defined brief—to design a four-bedroom home for a family of four, ensuring Vastu compliance, spatial comfort, and privacy within a constrained site context.

Given the limited plot size and the client’s requirement for generously sized rooms, the house is organized around a central courtyard, allowing spaces to turn inward while remaining well-lit and naturally ventilated. This planning strategy enables efficient spatial organization while strengthening visual continuity across the house.

Chennai,Tamil Nadu,India

Architects : Outlined Architects
Area : 2900 sq. ft.
Year of Completion : 2025
Website : https://www.instagram.com/outlined.architects

Exterior view of Vriksham Srira by Outlined Architects


Entryway of Vriksham Srira by Outlined Architects


Living room of Vriksham Srira by Outlined Architects

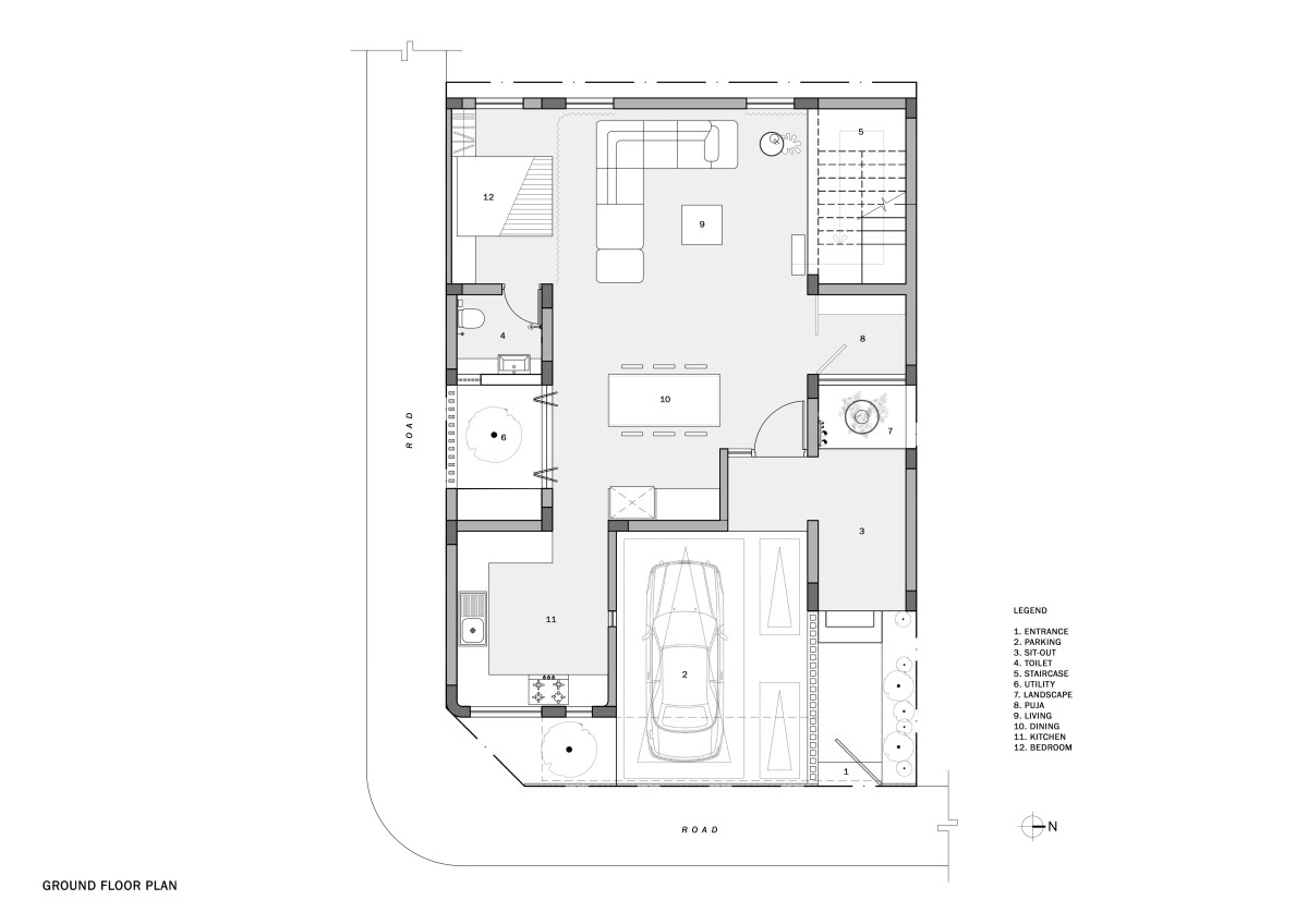
The ground floor accommodates an ample parking space at the entrance, from which a covered passage leads to a sit-out that acts as a transitional threshold by terracotta tile flooring and an ochre-toned art wall establish a warm entry sequence. The interior opens into a large, continuous living and dining space, visually connected to the puja area, staircase, multifunctional bed space, powder toilet, courtyard, and kitchen.

The centrally positioned courtyard becomes the focal point of the house, bringing daylight into the dining and kitchen areas. The kitchen is designed with carefully placed openings that maintain visual connectivity across the ground floor. A multifunctional daybed functions as an occasional sleeping space for visiting grandparents, with curtains providing privacy when required. The staircase, constructed using steel and natural stone, forms the structural and spatial core of the house.


Living room of Vriksham Srira by Outlined Architects


TV Unit & Pooja room of Vriksham Srira by Outlined Architects


Dining of Vriksham Srira by Outlined Architects


Kitchen of Vriksham Srira by Outlined Architects


Kitchen of Vriksham Srira by Outlined Architects


Staircase of Vriksham Srira by Outlined Architects


Bedroom 1 of Vriksham Srira by Outlined Architects

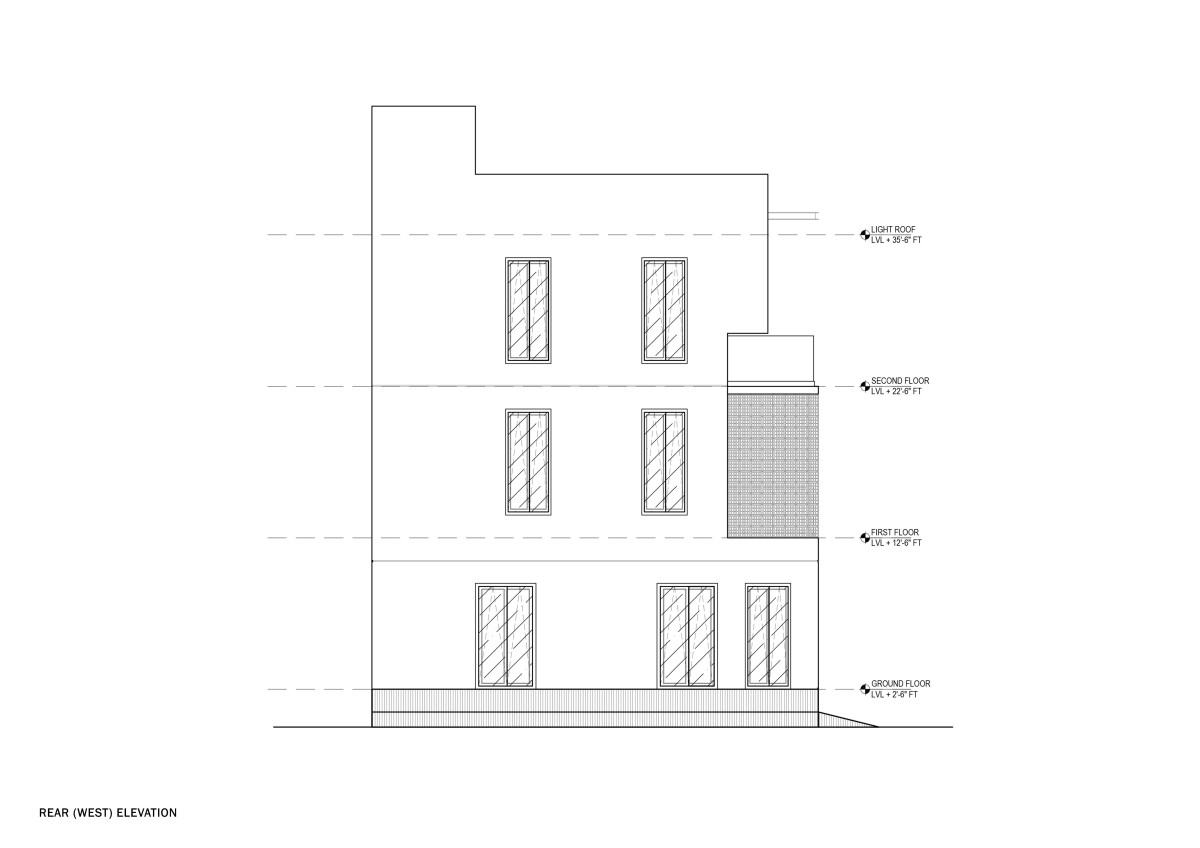
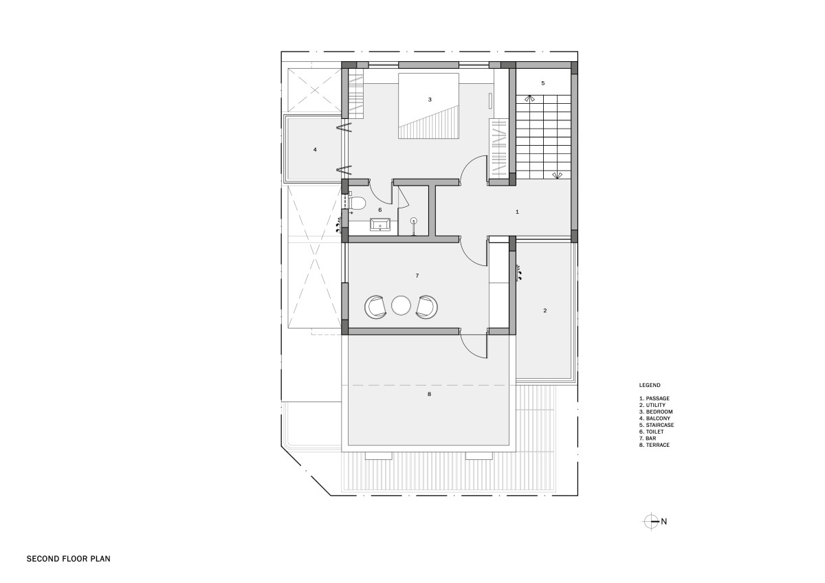
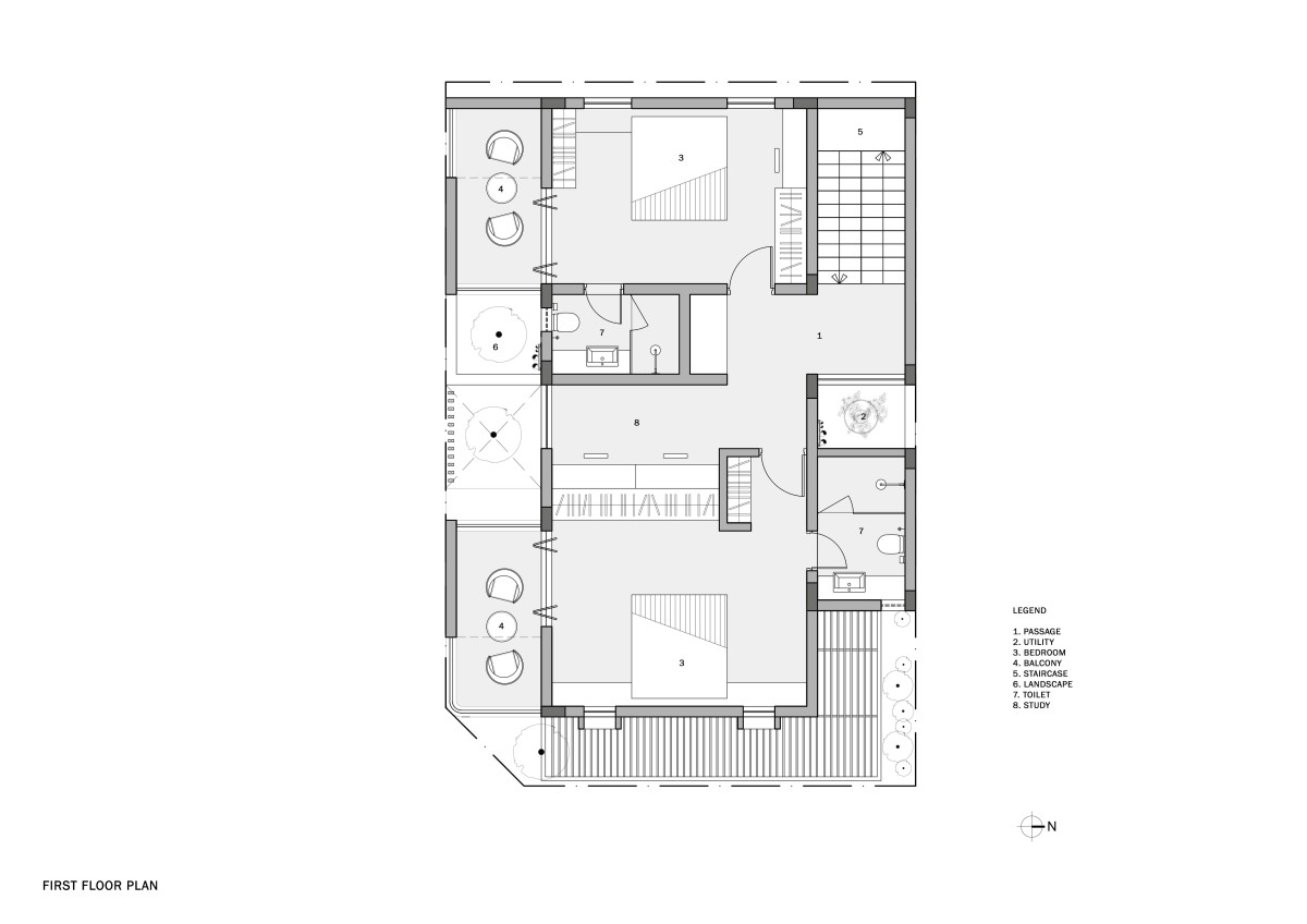
The first floor comprises a central passage leading to a three-user study and two themed bedrooms, each opening onto a balcony with views of the backwaters. The second floor houses an additional bedroom, service spaces, and a private bar room that opens onto an expansive terrace with 180-degree panoramic views. The terrace has emerged as the most actively used space, supporting everyday activities and leisure.

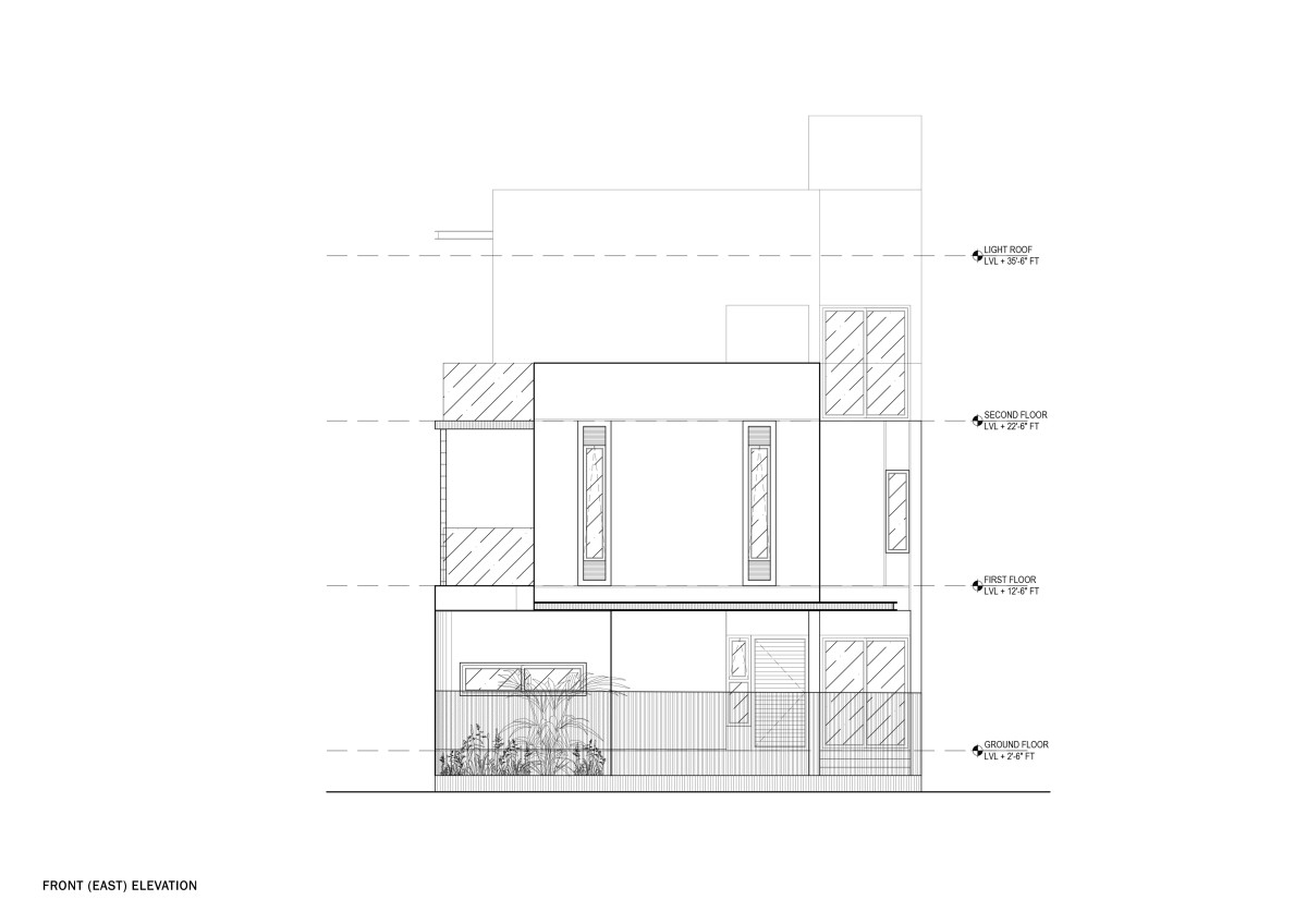
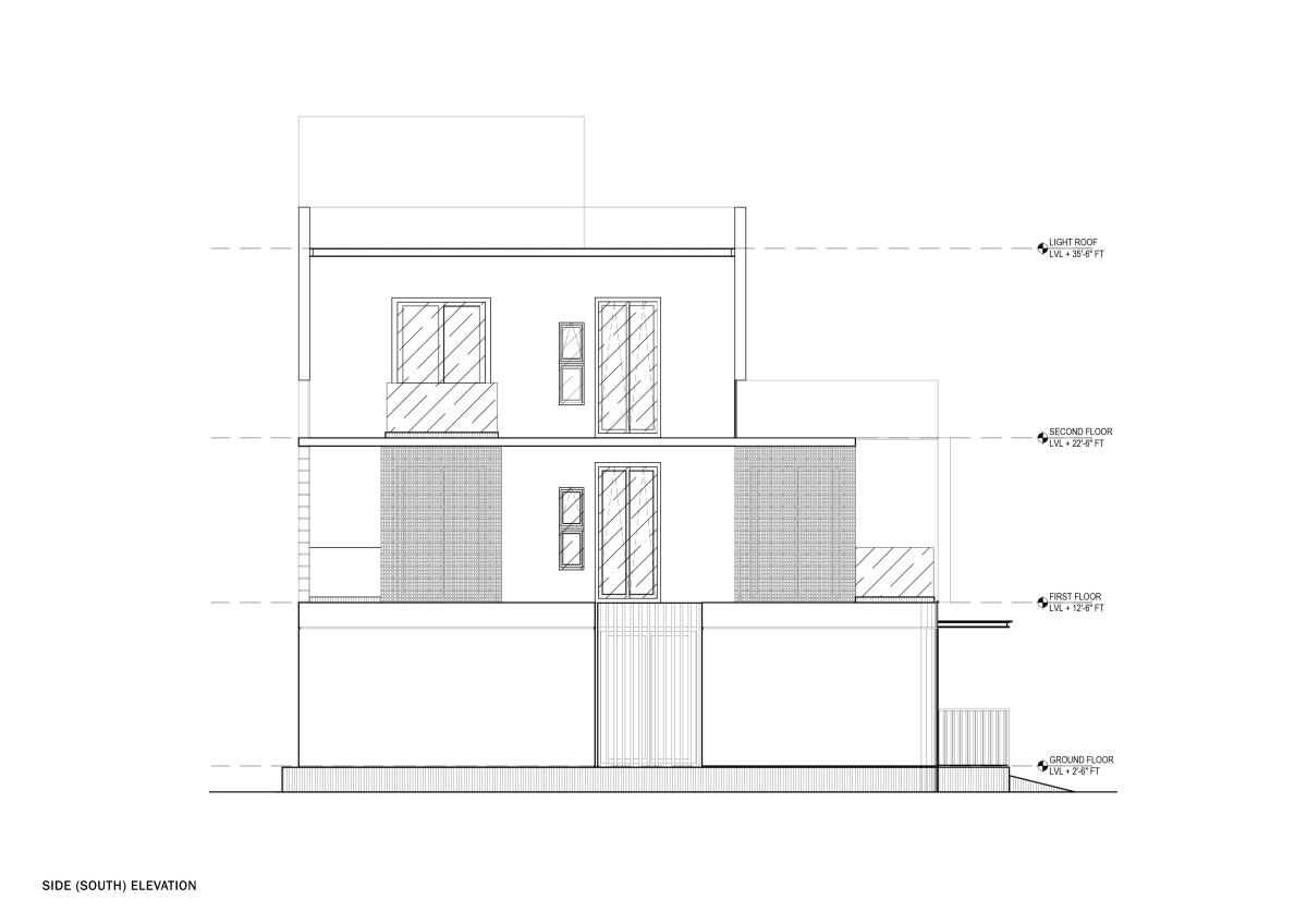
The architectural expression remains minimal, a white cuboidal form articulated with recessed openings, terracotta jali balconies, and a floating roof element, allowing the house to remain contextually rooted while maintaining a timeless identity.


Bedroom 1 of Vriksham Srira by Outlined Architects


Bedroom 2 of Vriksham Srira by Outlined Architects


Bedroom 3 of Vriksham Srira by Outlined Architects


Bedroom 3 of Vriksham Srira by Outlined Architects


Study Area of Vriksham Srira by Outlined Architects


Balcony of Vriksham Srira by Outlined Architects


Terrace of Vriksham Srira by Outlined Architects


Front Elevation of Vriksham Srira by Outlined Architects


Side Elevation of Vriksham Srira by Outlined Architects


Rear Elevation of Vriksham Srira by Outlined Architects


Ground Floor Plan of Vriksham Srira by Outlined Architects


First Floor Plan of Vriksham Srira by Outlined Architects


Second Floor Plan of Vriksham Srira by Outlined Architects


Terrace Floor Plan of Vriksham Srira by Outlined Architects




Most Visited Articles




Subscribe

Get our latest article and updates delivered straight to your inbox.