Architecture

19-07-2025

Photographer : Yash Jain, Ganesh Ramachandran

As the name suggests - a small site measuring 7 x 17m sandwiched between two existing houses (Tamil Nadu housing board of yester years built these twin houses to promote the neighbourhood) is to be developed as a private residence.

The shortest side being the one facing the street posed the below challenges.
1. This is the only source of ventilation for every floor and room. Located in a hot and humid tropical climate it is essential we keep it as open as 
possible.
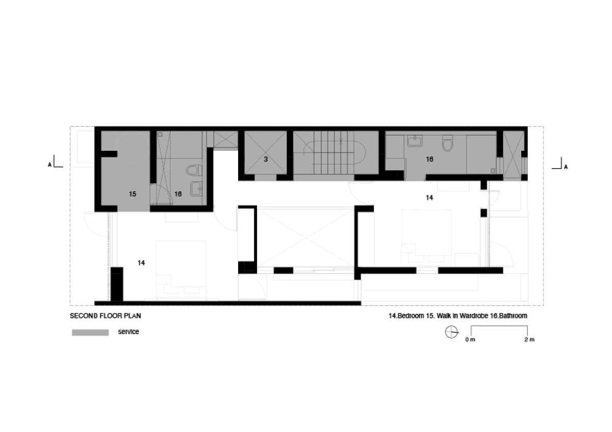
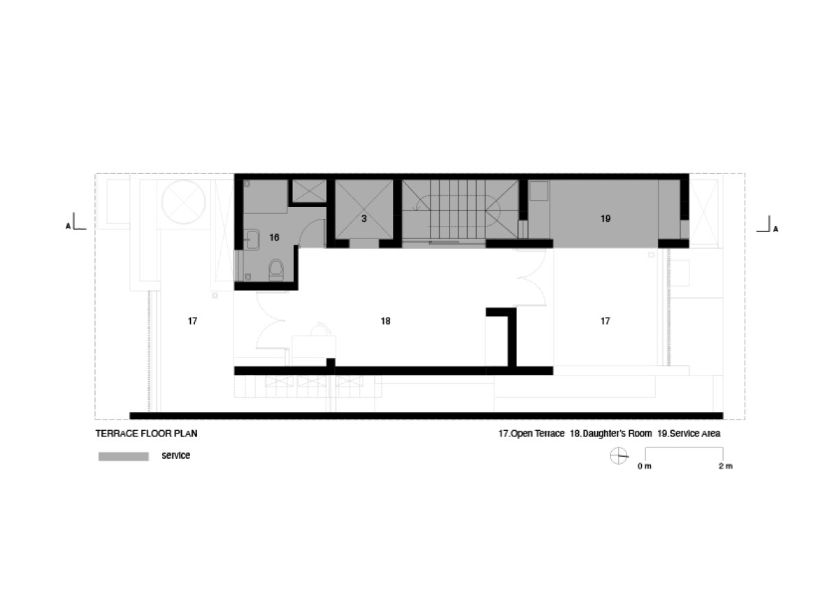
2. Being a small site it’s imperative that circulation and services (lift, stair, toilets, store, utility etc.) are grouped without losing space to access them and at the same time ensure they do not encroach on the exterior façade both in front and back.

The design of the house is a direct response to the above challenges. A staggered block of service along the depth holds the floor plates for maximum ventilation seasoned teak wood louvers express the porosity for ventilation.

On the inside the strategies for the site include double-height dining in the centre with a balcony on the east, 10-foot-high doors for rooms, toilets and wardrobes located along the depth of the site use of skylights to perceptively increase the size of the spaces.

Material finishes include flooring in pre-polished kotah stone, mirror polished granite partition separating the kitchen to dining and natural wood veneer finish for wardrobes.

Chennai,Tamil Nadu,India

Architects : moad
Area : 3120 sq. ft.
Year of Completion : 2020
Website : https://www.instagram.com/moad.in/

Exterior view of Wall to Wall by moad


Exterior view of Wall to Wall by moad


Living room of Wall to Wall by moad


Living room of Wall to Wall by moad


Living & Kitchen of Wall to Wall by moad


Dining of Wall to Wall by moad


Dining to Kitchen view of Wall to Wall by moad


Dining of Wall to Wall by moad


Dining to Staircase view of Wall to Wall by moad


Kitchen of Wall to Wall by moad


Kitchen of Wall to Wall by moad


Skylight of Wall to Wall by moad


Staircase of Wall to Wall by moad


Staircase of Wall to Wall by moad


Corridor of Wall to Wall by moad


Front Elevation of Wall to Wall by moad


Rear Elevation of Wall to Wall by moad


Street level plan of Wall to Wall by moad


First Floor Plan of Wall to Wall by moad


Second Floor Plan of Wall to Wall by moad


Terrace Floor Plan of Wall to Wall by moad


Section of Wall to Wall by moad




Most Visited Articles




Subscribe

Get our latest article and updates delivered straight to your inbox.