Text provided by Architect

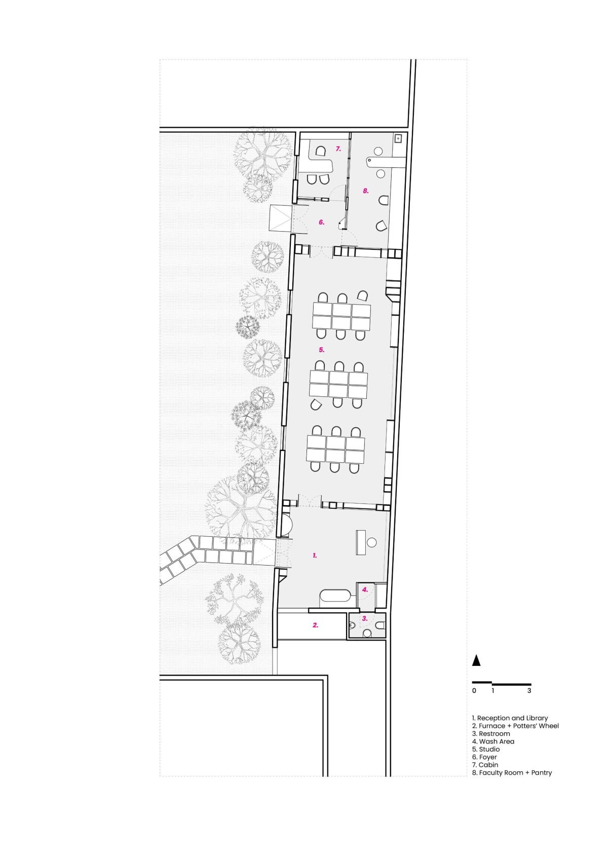
An art academy occupies a 1500 sq.ft. space within a mixed-use complex in central Ahmedabad. Designed to accommodate twenty-four students, the project reconfigures a commercial kitchen space into a clear, adaptable learning environment. The site sits between active restaurant edges on one side and a multi-purpose lawn on the other, requiring the space to negotiate both intensity and openness. 

The brief demanded spatial clarity without rigidity: an environment capable of supporting structured pedagogy while remaining open to experimentation and informal use. 

The plan is organized around a single, flexible studio that functions as the primary pedagogical space. Faculty areas and support functions are positioned along the perimeter, wrapping the studio without fragmenting it. This arrangement establishes clear zones while maintaining visual and spatial continuity across the interior. Circulation is kept minimal and legible. The studio dominates; all secondary spaces defer to it. Four new openings are introduced along the perimeter to draw in diffused daylight and frame views toward the adjacent landscape. Exterior planting filters light and softens the interface between inside and outside. 

Ahmedabad,Gujarat,India

Architects : Spatial Inquiry
Area : 1500 sq. ft.
Year of Completion : 2025
Website : https://www.instagram.com/spatial.inquiry/

Reception & Waiting Area of Art Academy at Ahmedabad by Spatial Inquiry


Waiting Area of Art Academy at Ahmedabad by Spatial Inquiry

Partition walls are conceived as working surfaces rather than neutral dividers. They function simultaneously as spatial organizers and display infrastructure, allowing student work to occupy and transform the interior over time. At the entry sequence, a wall of detachable A5 panels behind the reception desk operates as an evolving archive. Each graduating student contributes a single panel, 
gradually building a collective record of the academy’s lineage. Select elements from the institution’s earlier premises are retained and reintroduced. A washroom door, finished with residual paint from students’ hands and brushes, carries traces of past use forward, reinforcing the academy’s approach to material continuity. 

Birch plywood partitions define the interior while integrating shelving and concealed services. A consistent wall thickness of 36 mm—achieved through a 9 mm + 18 mm + 9 mm lamination—exposes the edge grain, eliminates the need for additional cladding, and creates internal voids for electrical conduits. The assembly performs multiple roles simultaneously: spatial definition, storage, and service integration, while maintaining material economy. 


Studio of Art Academy at Ahmedabad by Spatial Inquiry


Studio of Art Academy at Ahmedabad by Spatial Inquiry

Loose and movable furniture allows the studio to shift rapidly between modes of use. During the day, the space functions as a teaching environment; after hours, it accommodates open mics, board game nights, and community gatherings. This temporal flexibility extends the academy’s role beyond formal instruction. A custom height-adjustable table, developed in collaboration with Dhruv Mehta, supports users ranging from eight-year-old children to adults. The design adapts a simple friction-lock mechanism, translating an industrial principle into a tactile, robust element that remains cost-effective. 

The project establishes an institutional interior through restrained spatial moves and material discipline. Walls operate as working surfaces, furniture adapts to bodies of different scales, and select elements carry memory across time. The result is a space calibrated for both pedagogy and community: structured enough to support learning and open enough to absorb improvisation.


Cabin of Art Academy at Ahmedabad by Spatial Inquiry


View from cabin of Art Academy at Ahmedabad by Spatial Inquiry


View of the wash area of the Art Academy at Ahmedabad by Spatial Inquiry


Entryway of Art Academy at Ahmedabad by Spatial Inquiry


Detailed shot of furniture of Art Academy at Ahmedabad by Spatial Inquiry


Plan of Art Academy at Ahmedabad by Spatial Inquiry


Partition Wall Detail 1 of Art Academy at Ahmedabad by Spatial Inquiry


Partition Wall Detail 2 of Art Academy at Ahmedabad by Spatial Inquiry




Most Visited Articles




Subscribe

Get our latest article and updates delivered straight to your inbox.