Architecture

06-11-2025

Photographer : PHX Studio

Text provided by Architect

Avani Residence is located in the quiet, leafy lanes of Nagarbhavi, Bangalore—a city known for its bustling urban life and complex spatial constraints. Conceived by Archemist Architects, the project is a 3,000 sq.ft single-family home designed as a vertical sanctuary for a family of four, blending intimate spaces with an expansive openness. The site, measuring 30’x45’, demanded a creative approach to maximize spatial efficiency without sacrificing light, material richness, or livability.

The client brief emphasized privacy, natural light, and seamless spatial connectivity. Our design approach evolved around these requirements, carving out an architecture that draws light, breathes space, and integrates materiality as a narrative. The double-height living area forms the heart of the home, flooded with natural light and anchored by a dramatic stone feature wall. A carved sandstone panel inspired by peacock feathers offers an intricate play of light and shadow, integrating art into the architectural fabric.

One key design element was the clay rope panel over the dining area, an organic feature that subtly conceals functional spaces while adding a sculptural rhythm to the interiors. The pooja room, bathed in sunlight through a skylight, exemplifies a minimalist yet sacred space, enclosed in glass with an onyx backdrop.

Bangalore,Karnataka,India,Nagarbhavi

Architects : Archemist Architects
Area : 3,000 sq. ft.
Year of Completion : 2024
Website : https://www.instagram.com/archemist_architects/

Elevation of Avani Residence by Archemist Architects


Entrance of Avani Residence by Archemist Architects


Living Room of Avani Residence by Archemist Architects

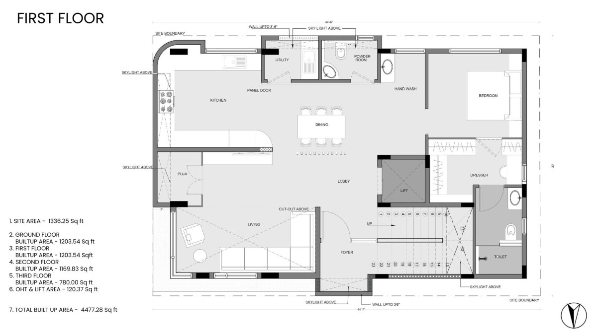
The first floor of Avani Residence forms the social and spiritual core of the home, where everyday rituals and shared moments are given architectural expression. Anchored by a soaring double-height living space, the floor is conceived as an open yet layered composition that allows light, texture, and craft to define its character. 

The living area is bathed in warm eastern light, which filters in through tall openings and washes across a 20-foot stone-clad feature wall, setting the tone of grandeur and intimacy in equal measure. This space seamlessly flows into the dining and kitchen zone, creating a continuous volume that encourages interaction while maintaining visual openness.

Art and architecture converge here through crafted details: a carved bone sandstone panel with delicate feather-like motifs transforms the wall into a tactile artwork, while a clay-rope installation arcs from wall to ceiling above the dining, lending softness and rhythm to the space. Together, these elements imbue the interiors with a quiet sense of narrative and artistry.


Living Room of Avani Residence by Archemist Architects


Living Room of Avani Residence by Archemist Architects


Living & Dining of Avani Residence by Archemist Architects


Dining of Avani Residence by Archemist Architects


Dining of Avani Residence by Archemist Architects

At the heart of the first floor, the kitchen and dining space form a seamless extension of the double-height living area, reinforcing the sense of openness that defines Avani Residence. The dining is anchored by an organic clay-rope panel that curves from wall to ceiling, artfully concealing service doors while creating a sculptural canopy that lends warmth, rhythm, and verticality to the space.

The adjacent open kitchen is designed with efficiency and elegance in mind—streamlined cabinetry, pastel finishes, and a restrained material palette give it a light, modern character while maintaining its connection to the larger social zone. Together, the kitchen and dining embody a balance of craft and utility, transforming everyday rituals of cooking and gathering into shared experiences within the architectural narrative of the home.


Kitchen of Avani Residence by Archemist Architects


Pooja Room of Avani Residence by Archemist Architects

Celebrated in its presence, the pooja room is enclosed in glass and illuminated by a skylight from above. Its monolithic onyx backdrop and minimal detailing create an atmosphere of serenity, turning the space into a luminous sanctuary within the home.


Chandelier of Avani Residence by Archemist Architects


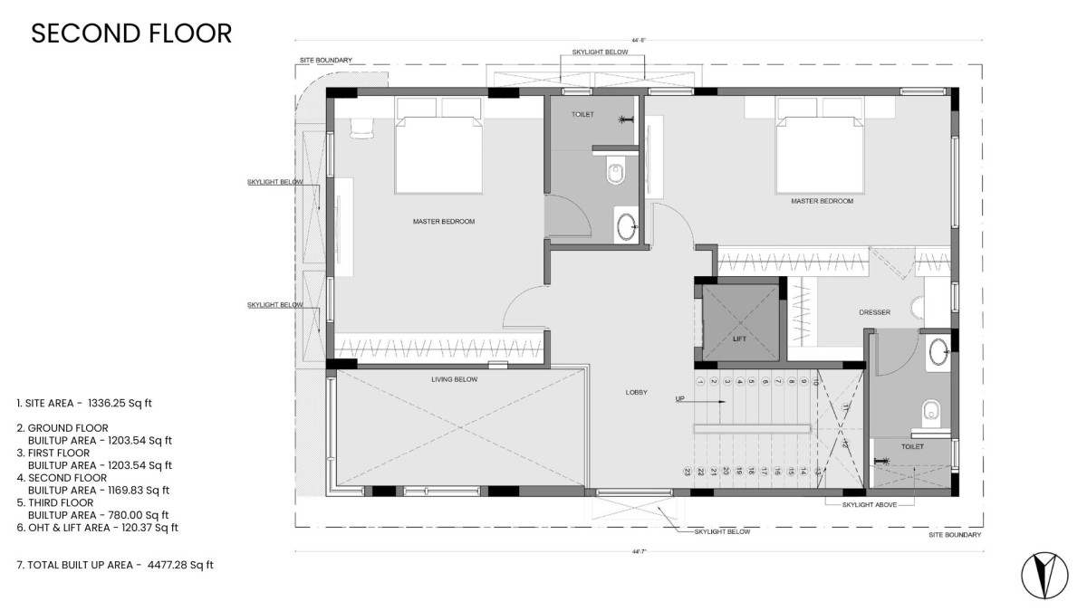
Master Bedroom of Avani Residence by Archemist Architects

The master suite embraces a palette of soft florals and muted pastels, with custom cabinetry and light finishes that evoke calmness and repose. Natural light filters in gently, highlighting subtle textures and creating a restful atmosphere that anchors the private domain of the parents. 
 
Circulation on this floor is fluid yet defined, with transitional spaces kept light and uncluttered to enhance privacy while maintaining spatial continuity within the vertical home. In its overall design, the second floor becomes an intimate retreat—balancing individuality and cohesion, quietude and expression—where architecture supports both personal identity and collective belonging.


Master Bedroom of Avani Residence by Archemist Architects


Son's Bedroom of Avani Residence by Archemist Architects

The son’s bedroom is bold and expressive, animated by a striking tropical wallpaper that becomes the visual centerpiece of the space. Structured furnishings and a more vibrant material palette add dynamism, reflecting the youthful energy of its occupant.


Bedroom 3 Avani Residence by Archemist Architects


Bar of Avani Residence by Archemist Architects

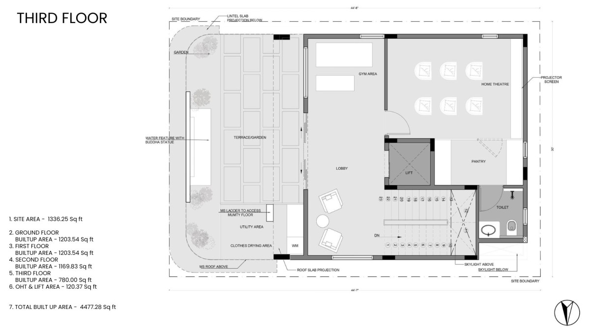
At its heart lies a lounge designed for relaxation and conviviality. A custom-crafted bar unit anchors the space, offering both utility and visual presence, while comfortable seating arrangements make it a versatile setting for family conversations or quiet evenings of retreat. The palette here is warm yet understated, allowing the focus to remain on the experience of unwinding within a calm, elevated environment.


Terrace of Avani Residence by Archemist Architects

Beyond the lounge, sliding doors open onto a landscaped terrace that extends the living experience
into the open sky. This terrace is conceived as an urban oasis—lush with planting and grounded by water. At its center, koi fish circle serenely around a Buddha statue, a gesture of stillness and reflection. The surrounding greenery softens the edges, creating a layered, tactile landscape that contrasts the dense city below.


Terrace of Avani Residence by Archemist Architects

Challenges included maximizing verticality while maintaining spatial fluidity. The solution lay in interconnecting floors visually and functionally. The master suite contrasts with the son’s room, offering a soft, floral palette versus a bold, tropical theme, ach reflecting individual personalities. The third floor culminates in a landscaped terrace with a koi pond and Buddha statue, providing an urban retreat.

Material choices play an emotive role: warm woods, veined marble, brushed brass, and handcrafted surfaces define tactile experiences, allowing zones to emerge organically without rigid partitions.

Avani Residence fulfills the client’s vision by reimagining compact urban living into a harmonious interplay of light, texture, and spatial experience. The home transcends conventional limitations, evolving as a sanctuary rooted in its context while offering a deeply personal and expressive atmosphere.


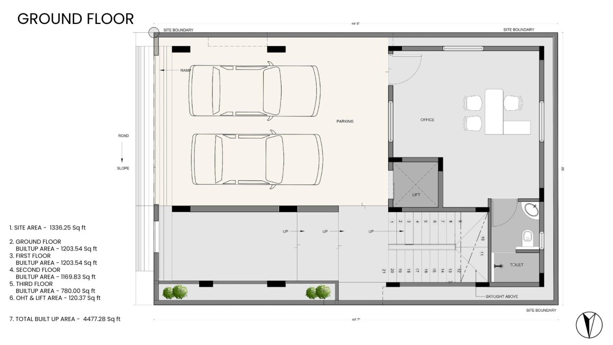
Ground floor Plan of Avani Residence by Archemist Architects


First Floor Plan of Avani Residence by Archemist Architects


Second Floor Plan of Avani Residence by Archemist Architects


Third Floor Plan of Avani Residence by Archemist Architects




Most Visited Articles




Subscribe

Get our latest article and updates delivered straight to your inbox.