Architecture

13-12-2025

Photographer : Pranit Bora

Text provided by Architect

Block / Unblock — A Preschool Shaped by Light, Warmth, and Simple Order

Block / Unblock is a preschool in Bhusawal, Maharashtra, designed and completed in 11 months. Positioned within a small town where contemporary architecture is still emerging, the project introduces a clear and grounded design language—one that is minimal, climate-aware, and deeply oriented toward children.

The idea begins with a single, monolithic block—white, quiet, and composed. This solidity is deliberately punctured with deep recesses washed in yellow, capturing light at different times of day and giving the building its distinct presence. Inside, a warm Jaisalmer stone floor anchors the spaces, reflecting sunlight and bringing a sense of joy and brightness into the daily life of the school.

This paired palette of white and yellow sets a sharp visual order, while the children naturally “unblock” the rigidity of the form. Their movement, play, and voices soften the architecture, turning its clarity into something living and constantly shifting.

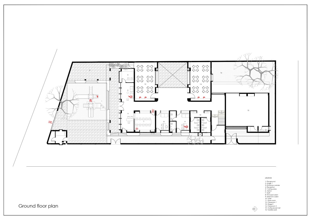
The plan follows a simple rhythm: classrooms alternated with open and semi-open activity zones. These in-between spaces allow for easy negotiation between indoor and outdoor learning. Climate-responsive use defines the school’s daily patterns—the north garden becomes the winter playground, while the central courtyard, open to the east through louvers, becomes a cooler, softly lit space for the summer months. Its stepped edges support group activities and informal gathering.

Bhusawal,Maharashtra,India

Architects : Humanscape
Area : 10400 sq. ft.
Year of Completion : 2025
Website : https://www.instagram.com/humanscape.in/

Exterior view of Block - Unblock by Humanscape


Exterior view of Block - Unblock by Humanscape

The west façade, carved with deep vertical punctures, acts as the primary elevation, filtering harsh sunlight while giving the building a strong identity from the street. Existing neem trees in the southwest are preserved for shade and climatic comfort, forming a natural buffer.

Circulation is treated as an extension of learning spaces—verandas and corridors that are shaded, breathable, and open to small discoveries. These edges provide a safe and fluid sense of movement, allowing children to explore freely.


Entrance of Block - Unblock by Humanscape


Playground of Block - Unblock by Humanscape


Outdoor lobby of Block - Unblock by Humanscape


Multipurpose Hall of Block - Unblock by Humanscape

With its restrained material palette and controlled geometry, Block / Unblock avoids over-design and offers a simple canvas for play and learning. It is conceived as a framework that can adapt to future expansions while holding onto its essential clarity.

For Bhusawal, the project marks a small yet meaningful step in shaping a thoughtful, locally rooted architectural language—one that places climate, community, and the spontaneity of childhood at its centre.


Multipurpose Hall of Block - Unblock by Humanscape


Multipurpose Hall of Block - Unblock by Humanscape


Corridor of Block - Unblock by Humanscape


Corridor of Block - Unblock by Humanscape


Skylight of Block - Unblock by Humanscape


Teacher's room of Block - Unblock by Humanscape


Elevation of Block - Unblock by Humanscape


Elevation of Block - Unblock by Humanscape


Ground Floor Plan of Block - Unblock by Humanscape


First Floor Plan of Block - Unblock by Humanscape




Most Visited Articles




Subscribe

Get our latest article and updates delivered straight to your inbox.