Architecture

27-04-2026

Photographer : Pixels by Binsan

Text provided by Architect

In the quiet landscape of Mannivakkam, Chennai, Harmony House stands as a compelling study in architectural synthesis. Rather than following a singular aesthetic, the residence is a physical manifestation of a creative negotiation between two distinct sensibilities: the "less is more" restraint of Japanese-Scandinavian minimalism and the tactile, earthy warmth of traditional Indian craft.

Designed for a family of four, the house avoids the common pitfall of aesthetic compromise. Instead, it allows these seemingly opposing philosophies—the husband’s preference for modern precision and the wife’s love for rooted textures—to coexist and define the home’s spatial identity.

Chennai’s tropical climate—defined by piercing afternoon sun and high humidity—demanded an architecture that breathed without sacrificing privacy. The design responds through a clever "layered" envelope, structured by two primary L-shaped walls that function as the building’s lungs.

The Ground Layer: Clad in terracotta and intricate brick jali screens, this wall anchors the house. It acts as a thermal filter, breaking the harsh southern sun into dappled light while inviting the wind to move freely through the entrance court.

The Upper Layer: This secondary plane rises to embrace a semi-open mezzanine terrace. It is connected by an internal bridge that overlooks the heart of the home, acting as both a physical link and a climatic buffer along the western edge.

The Void as an Anchor: At the center of the project, the architecture doesn't merely sit on the land; it wraps around a vibrant, open-air void. This isn't a traditional indoor courtyard, but a central outdoor lung that the entire house breathes through.

Chennai,Tamil Nadu,India

Architects : D.L.E.A
Area : 3800 sq.ft.
Year of Completion : 2025
Website : https://www.instagram.com/d.l_e.a

Facade of Harmony House by D.L.E.A


View from the main door showing the entrance Court of Harmony House by D.L.E.A


View from the pedestrain gate of Harmony House by D.L.E.A


View of the open air void of Harmony House by D.L.E.A

The primary living areas—the dining and lounge spaces, the informal family rooms, and the bedrooms—are distributed across different levels, all oriented toward this central opening. By replacing solid internal walls with expansive windows on every side, the rooms become viewing galleries. This configuration ensures that every corner of the home, whether on the ground floor or the mezzanine, remains visually and physically connected to the sky, the breeze, and the shifting light of the day.

The "his and hers" narrative is most legible in the home’s facade and material palette. The grounded geometry of the L-walls, the exposed brickwork, and the delicate integrated line art reflect a rooted, handcrafted aesthetic. In contrast, a bold cyan-blue balcony and fluid, parametric metal screens introduce a rhythmic, contemporary lightness.

This dialogue even extends to the staircase—a sculptural element featuring a modern, folded-metal outer shell that carries steps of traditional brick.


View of the open air void of Harmony House by D.L.E.A


View of the open air void of Harmony House by D.L.E.A

Internally, the house is guided by the Japanese principle of simplicity. The plan is uncluttered, allowing spaces to flow naturally around the central void. Through the use of openable jali panels, the inhabitants can modulate their environment—choosing when to maintain privacy and when to open their living spaces to the pulse of the household.


View of the living room Harmony House by D.L.E.A



View of the living room Harmony House by D.L.E.A


View of the double height dining and staircase of Harmony House by D.L.E.A


View of the double height dining and pooja unit of Harmony House by D.L.E.A


View of the double height dining and staircase of Harmony House by D.L.E.A


View of the Kitchen of Harmony House by D.L.E.A


View of the informal workspace of Harmony House by D.L.E.A


View of the Double height with skylight of Harmony House by D.L.E.A


View of the staircase from informal living of Harmony House by D.L.E.A


View of the Bridge of Harmony House by D.L.E.A


View of the Bridge of Harmony House by D.L.E.A


View of the Master Bedroom of Harmony House by D.L.E.A


View of the Master Bedroom of Harmony House by D.L.E.A


View of the Semi open terrace of Harmony House by D.L.E.A


View of the semi open terrace of Harmony House by D.L.E.A


Evening View of Facade of Harmony House by D.L.E.A


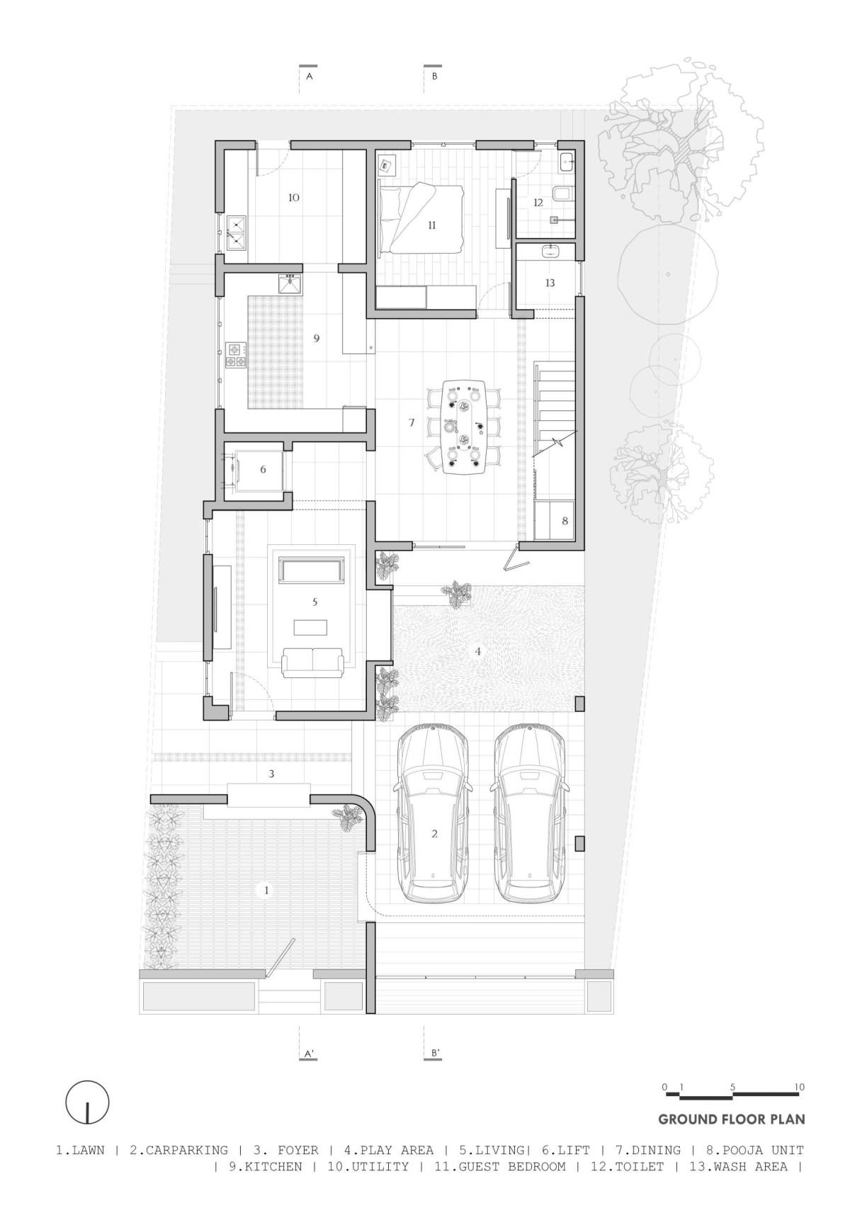
Ground Floor Plan of Harmony House by D.L.E.A


First Floor Plan of Harmony House by D.L.E.A


Second Floor Plan of Harmony House by D.L.E.A


Section AA of Harmony House by D.L.E.A


Section BB of Harmony House by D.L.E.A




Most Visited Articles




Subscribe

Get our latest article and updates delivered straight to your inbox.