Bangalore,Karnataka,India

Architects : Greyscale Design Studio
Area : 5000 sq. ft.
Year of Completion : 2024
Website : https://www.instagram.com/greyscaledesignstudio/?hl=en

Exterior view of Heirloom in Concrete by Greyscale Design Studio


Entry steps from parking of Heirloom in Concrete by Greyscale Design Studio


Living room & Courtyard of Heirloom in Concrete by Greyscale Design Studio


Courtyard of Heirloom in Concrete by Greyscale Design Studio


Living to Dining view of Heirloom in Concrete by Greyscale Design Studio


Dining of Heirloom in Concrete by Greyscale Design Studio


Stair leading to family living at upper level of Heirloom in Concrete by Greyscale Design Studio


Pooja Mandir of Heirloom in Concrete by Greyscale Design Studio


First Floor Parent Living of Heirloom in Concrete by Greyscale Design Studio


First Floor Parent's Dining of Heirloom in Concrete by Greyscale Design Studio


Family living on second floor of Heirloom in Concrete by Greyscale Design Studio


Kids Bedroom of Heirloom in Concrete by Greyscale Design Studio


Bedroom of Heirloom in Concrete by Greyscale Design Studio


Staricase from family living to terrace of Heirloom in Concrete by Greyscale Design Studio


Green oxide finish on the staircase leading to terrace of Heirloom in Concrete by Greyscale Design Studio


Pantry to Terrace view of Heirloom in Concrete by Greyscale Design Studio


Terrace of Heirloom in Concrete by Greyscale Design Studio


Dusk light exterior view of Heirloom in Concrete by Greyscale Design Studio


Elevation 1 of Heirloom in Concrete by Greyscale Design Studio


Elevation 2 of Heirloom in Concrete by Greyscale Design Studio


Ground Floor Plan of Heirloom in Concrete by Greyscale Design Studio


First Floor Plan of Heirloom in Concrete by Greyscale Design Studio


Second Floor Plan of Heirloom in Concrete by Greyscale Design Studio


Third Floor Plan of Heirloom in Concrete by Greyscale Design Studio


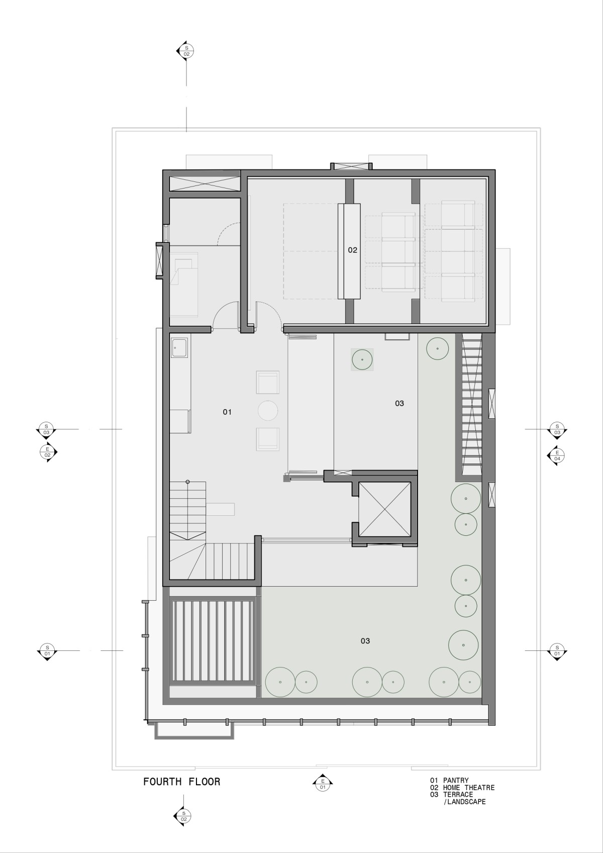
Fourth Floor Plan of Heirloom in Concrete by Greyscale Design Studio


Section 1 of Heirloom in Concrete by Greyscale Design Studio


Section 2 of Heirloom in Concrete by Greyscale Design Studio


Section 3 of Heirloom in Concrete by Greyscale Design Studio




Most Visited Articles




Subscribe

Get our latest article and updates delivered straight to your inbox.