Architecture

13-08-2025

Located in the heart of Bangalore’s vibrant urban landscape, this penthouse epitomizes a seamless blend of modern sophistication and relaxed charm. Designed to cater to the refined tastes of urban dwellers, it offers an oasis of tranquility and style amidst the bustling city.

Upon entering, the eye is immediately drawn to a stunning helical staircase, a sculptural centerpiece that sets a tone of contemporary elegance. This architectural marvel, with its fluid curves and impeccable craftsmanship, rises gracefully against the backdrop of a curved feature wall. The contrast between the staircase’s dynamic, swirling form and the clean, linear aesthetic of the surrounding space creates a striking visual impact, making it a focal point that embodies both artistic flair and structural ingenuity.

The interior palette is a celebration of light and airiness, predominantly adorned in crisp whites that evoke a sense of purity and expansiveness. These are complemented by warm, light wood finishes that introduce an element of natural warmth and texture. Subtle hints of grey are interspersed throughout the design, adding depth and refinement while maintaining a cohesive and sophisticated look. This careful balance of colors and materials contributes to a cozy yet contemporary ambiance, where each element harmonizes with the next to create an inviting and serene environment.

Bangalore,Karnataka,India

Architects : Design Kacheri
Area : 4500 sq. ft.
Year of Completion : 2023
Website : https://www.instagram.com/designkacheri/

Elevation of Hemadri by Design Kacheri


Elevation of Hemadri by Design Kacheri


Foyer of Hemadri by Design Kacheri


Living room of Hemadri by Design Kacheri

Natural light floods the penthouse through strategically placed skylights, transforming the interior into a luminous haven. These skylights are more than just sources of light; they are thoughtfully positioned to create a dynamic interplay of light and shadow that evolves throughout the day. This ever-changing illumination not only enhances the aesthetic appeal of space but also fosters a connection with the natural rhythms of the day. The integration of natural elements, such as light and views of the sky, enhances the overall sense of openness and tranquility, providing a serene contrast to the vibrant cityscape outside.

Towards the rear of the penthouse, a private deck and terrace garden extend the living space outdoors, offering peaceful retreats amidst urban surroundings. These outdoor areas are designed for both relaxation and entertainment, seamlessly merging indoor comfort with outdoor tranquility. The terrace garden, with its lush greenery and thoughtful landscaping, serves as a sanctuary where residents can unwind and rejuvenate, while the deck provides a perfect setting for social gatherings or quiet moments of reflection.


Living room of Hemadri by Design Kacheri


Fluted wooden cladding of Hemadri by Design Kacheri


Dining of Hemadri by Design Kacheri


Dining & Kitchen of Hemadri by Design Kacheri


Kitchen of Hemadri by Design Kacheri


Staircase of Hemadri by Design Kacheri

The layout of the penthouse emphasizes both functionality and fluidity. Open-plan living areas promote connectivity and a sense of spaciousness, encouraging interaction and flow between different zones. Meanwhile, private areas are carefully integrated to ensure that residents can enjoy solitude and privacy without compromising the overall inviting atmosphere. This thoughtful design approach ensures that every corner of the penthouse is both practical and aesthetically pleasing, catering to the diverse needs of modern urban living.

In essence, this casual modern penthouse offers a sanctuary in Bangalore, where contemporary design meets laid-back sophistication. With its thoughtful use of space, light, and natural elements, it provides a stylish retreat for urban dwellers seeking comfort, style, and a sense of serenity amidst city living. The penthouse is a testament to the art of creating harmonious living spaces that blend the best of both worlds – the vibrancy of urban life and the tranquility of a serene retreat.


Helical Metal Staircase of Hemadri by Design Kacheri


Fluted panel along staircase of Hemadri by Design Kacheri


Skylight of Hemadri by Design Kacheri


Master Bedroom of Hemadri by Design Kacheri


Master bedroom lobby of Hemadri by Design Kacheri


Master Bathroom of Hemadri by Design Kacheri


Master Study Area of Hemadri by Design Kacheri


Guest Bedroom of Hemadri by Design Kacheri


Study area of Hemadri by Design Kacheri


Kids Bedroom of Hemadri by Design Kacheri


Bedroom with bay window seat of Hemadri by Design Kacheri


Wardrobe of Hemadri by Design Kacheri


Terrace of Hemadri by Design Kacheri


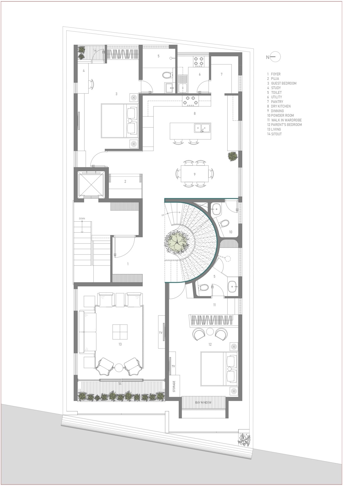
Ground Floor Layout of Hemadri by Design Kacheri


First Floor Layout of Hemadri by Design Kacheri




Most Visited Articles




Subscribe

Get our latest article and updates delivered straight to your inbox.