Text provided by Architect

The project is not metropolitan in context, but at a location that belongs to the urban-rural continuum in India. Shirdi is a small town surrounded by villages of the Deccan Plateau, where farming is an essential part of livelihood. The site sits in the outskirts of the town at the threshold of such farmlands. Designing next to the farm brought us an opportunity to contemporise living that connects to fields and appreciates farming as part of the culture of the society. Along with the contemporary professional knowledge and theoretical ideas in design, the process has truly been a back and forth exercise of establishing a relationship of the building to the farms and expanding it until the setting horizon to the west direction. 

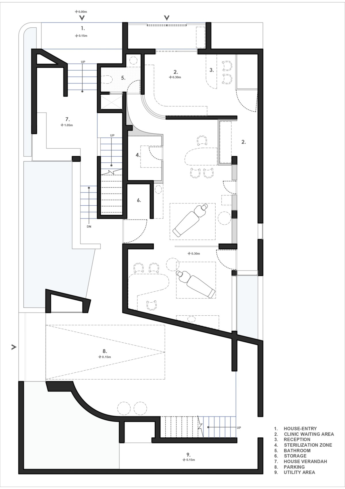
The client approached with a clear daily routine to strictly cater to and smoothly respect the private and public boundaries of their household. Them, being doctors, wanted the building to be a mix of a small clinic on the ground and their residence on the further respective floors. 

For us, making a completely inward looking home and letting it connect with the context was the basic aim and analysis of clients brief with our site studies. ‘Entering at the street level and disappearing into the tunnel like stairways to reach corridors with many small windows looking at the courtyard that offers a panoramic view of the horizon with farms, before entering the rooms’ became the design idea all throughout the buildings. 

Ahmednagar,Maharashtra,India

Architects : Collective Practices LLP
Area : 4500 sq. ft.
Year of Completion : 2019
Website : https://www.instagram.com/collective.practices/

Exterior view of House at the Edge of a Farm by Collective Practices LLP


Front Elevation of House at the Edge of a Farm by Collective Practices LLP


Front Elevation of House at the Edge of a Farm by Collective Practices LLP


Porch Area of House at the Edge of a Farm by Collective Practices LLP


Staircase of House at the Edge of a Farm by Collective Practices LLP


Staircase view of House at the Edge of a Farm by Collective Practices LLP


Study Area of House at the Edge of a Farm by Collective Practices LLP


Corridor of House at the Edge of a Farm by Collective Practices LLP


Corridor of House at the Edge of a Farm by Collective Practices LLP

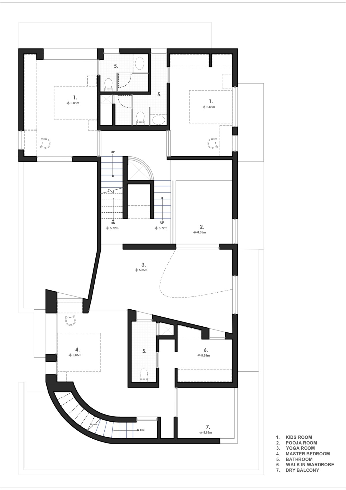
These corridors could be used for different together-activities like a hobby room as part of the corridor, dining as an extended corridor, or Puja at the extended staircase landing. ‘The tunnel-like staircases have a series of small skylights through which the scattered light creates a soothing experience’. This idea of common spaces as buffers to private zones was part of the study that we recently compiled, of the traditional Wada of Deccan Plateau where it is critical to use corridors as soft space between entry and private interior within, along with a skylight to bring light just enough to see around.

The form of the house has been generated as a response to its setting at the farm edge, climatic orientation, vastu compliance, sanction regulations, and clients requirements.


Corridor of House at the Edge of a Farm by Collective Practices LLP


Courtyard of House at the Edge of a Farm by Collective Practices LLP

Sections have been arranged to incorporate the courtyard pushed at the west boundary of the plot. This courtyard at the ground connects the clinic, and the residence. As one moves on upper floors, the same courtyard naturally ventilates the rooms surrounding it with the breeze from the North-west. Dividing the north south section into two blocks allowed to play with levels and stagger functions as per privacy ladder. This also brought us to articulate a fun labyrinth of circulation ensuring rather surprising pauses to enjoy the windows peeping at the beautiful landscape. 

The overall process of building this house has been a humble approach to bring the farming culture closer to the living and indirectly learn the society through its contexts and basic livelihood.


Elevation of House at the Edge of a Farm by Collective Practices LLP


Ground Floor Plan of House at the Edge of a Farm by Collective Practices LLP


First Floor Plan of House at the Edge of a Farm by Collective Practices LLP


Second Floor Plan of House at the Edge of a Farm by Collective Practices LLP


Terrace Plan of House at the Edge of a Farm by Collective Practices LLP


Section of House at the Edge of a Farm by Collective Practices LLP




Most Visited Articles




Subscribe

Get our latest article and updates delivered straight to your inbox.