Architecture

18-01-2026

Photographer : Inclined Studio

Text provided by Architect

The house that unfolds into the morning illumination: This villa is oriented towards North and East to always soak in the cool and diffused light, designed for gentle luxury. It's orientation is also mindful of the adjoining clubhouse and its expansive garden, allowing the villa's private lawn to visually merge with it, creating a larger and cohesive space. With a connection to the open space at its core, porous spatial planning became the keystone for the project. 

Laid out across multiple levels, the architecture choreographs a seamless visual and physical dialogue with the landscape, offering moments of pause, flow, and quiet introspection. The entry sequence is quietly theatrical; a vestibule wrapped in glass blocks filters light into a gallery-like threshold. A mural of Ganesha anchors this space, offset by abstract furniture in a palette of subtle hues- whites, ivories, and warm browns. 

The entry vestibule appears to float effortlessly beneath a cantilevered concrete slab, creating a striking sense of lightness and arrival. Meanwhile, the car park is discreetly placed with an indirect access route, keeping it hidden from immediate view. With indirect entrances and layered façade details, the design plays with opacity and translucence, always offering a glance at what is to come. The elevations feature wooden screens, while redwood on the ceilings continues onto some walls, creating a sense of warmth and material continuity.

Ahmedabad,Gujarat,India

Architects : VPA Architects
Area : 12,000 sq. ft.
Year of Completion : 2024
Website : https://instagram.com/vpaarchitects?utm_medium=copy_link

Exterior view of Levant House by VPA Architects


Sitout of Levant House by VPA Architects


Garden to Verandah view of Levant House by VPA Architects


Entryway of Levant House by VPA Architects


Verandah of Levant House by VPA Architects


Vestibule of Levant House by VPA Architects


Vestibule of Levant House by VPA Architects


Formal living of Levant House by VPA Architects


Formal living of Levant House by VPA Architects

A spatial layout of interlinked private and public spaces through landscape, light, and level progresses like a checkerboard. A carved courtyard adjacent to the living room becomes crucial to this L-shaped layout, allowing cross ventilation across both storeys and linking the indoors with the landscape in yet another direction. Generous open spaces allow for easy movement and everyday comfort, especially for the kids and family. 

Designed for a family that loves to host, each area is planned to accommodate gatherings and bring people together with ease. The living area, entirely glazed with fluted glass on one side, opens through the deck into a lush lawn on one side and an open-to-sky indoor veranda on the other, breaching the indoor-outdoor boundary. While a drawing area, through the passage, is more privacy-coated through partition walls, it still maintains garden-vantages.


Living room of Levant House by VPA Architects


Living room of Levant House by VPA Architects


Living room of Levant House by VPA Architects


Pooja Mandir of Levant House by VPA Architects

The dual kitchens- one open, the other discreetly tucked away- echo the design-infused rhythm of routine. The main kitchen embraces an open layout with an island top that anchors movement and maximizes storage, flowing effortlessly into a warm dining space. Much like the home’s soft interiors, the dining area features a gently edged square table and a bright yet subdued colour palette, and opens towards the lawn, passing through the open dining area outside. 

The interiors overall reflect a subtle vibe with lots of natural light, merging soft luxury with quiet tones and neutral artworks so that nothing feels overwhelming. Set gently between the veranda and the drawing room, a double-height puja space overlooks a quiet patch of greenery. It features bright tones and a screen designed for privacy. Beside it, a sculptural staircase with a wooden spine rises from the basement to the second floor, lit from above by a graceful chandelier.


Staircase view of Levant House by VPA Architects


Lounge of Levant House by VPA Architects


Parents Bedroom of Levant House by VPA Architects


Master Bedroom of Levant House by VPA Architects

The upper floor holds cosy bedrooms and a lively kids’ room designed with a bold, playful vibe- funky posters, a large window framing the sky, and a study area that blends into the soft interior palette. The other bedrooms take on a calmer tone, with quiet contrasts introduced through elements like sky lit bathrooms that invite in natural light. The basement is a sunken treasure- a retreat that transforms into a plush home theatre. Finished in muted tones, the space is softened by a luxurious sofa and deeply comfortable seating, offering a quiet escape from the bustle above. 


Balcony of Levant House by VPA Architects


Garden of Levant House by VPA Architects

The landscape remains seamlessly tied to the house, forming green pockets that are both soothing and spirited. Designed to host large gatherings, these outdoor spaces come alive with warm lighting, curated planting, and a zingy-calm energy that strikes a perfect balance between relaxation and festivity. Topping it all, solar panels installed on the terrace ensure the home not only gives back to its inhabitants, but also to the environment, quietly working in the background to conserve energy and support sustainable living.


Night exterior view of Levant House by VPA Architects


Elevation 1 of Levant House by VPA Architects


Elevation 2 of Levant House by VPA Architects


Elevation 3 of Levant House by VPA Architects


Elevation 4 of Levant House by VPA Architects


Basement Plan of Levant House by VPA Architects


Ground Floor Plan of Levant House by VPA Architects


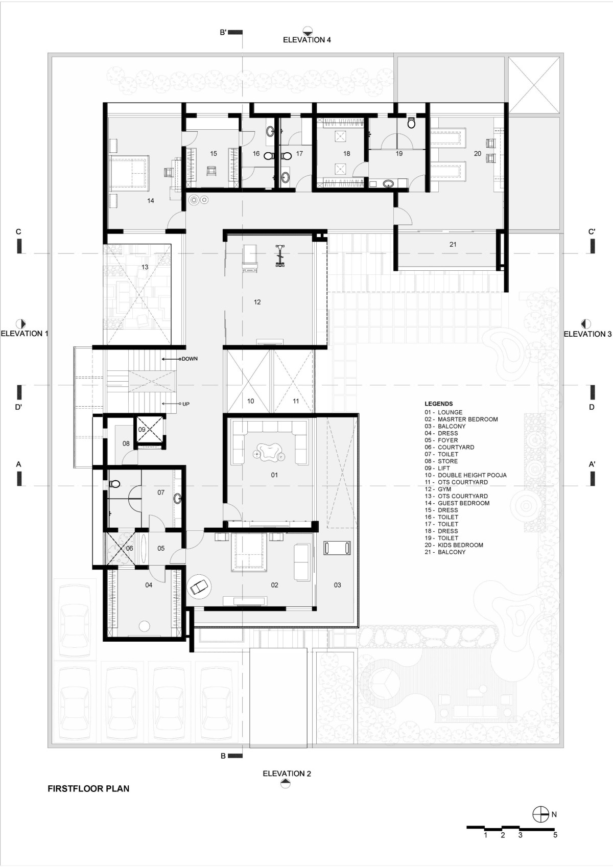
First Floor Plan of Levant House by VPA Architects


Terrace Plan of Levant House by VPA Architects


Section AA of Levant House by VPA Architects


Section BB of Levant House by VPA Architects


Section CC of Levant House by VPA Architects


Section DD of Levant House by VPA Architects




Most Visited Articles




Subscribe

Get our latest article and updates delivered straight to your inbox.