Text provided by Architect

Maria Manzil School – Engage, Embibe, Enlighten

We believe, every school should have an architectural identity to convey their vision, mission and practices. Maria Manzil school is located in the foothills of Aaravalis, in the city of Nuh, which is identified as one of the most socio economically challenged districts, in the Mewat region of Haryana. This building is not just meant to be a school but as a catalyst for social change and educate the masses.  School is designed to accommodate more than 2000 students with all the required facilities. 

The school building is positioned towards the front of the site, establishing a street presence and ease of access while giving a sense of enclosure and privacy to the expansive playground behind. While the building mass is broken into articulated volumes to reduce its visual bulk, enhance ventilation, and invite natural light, the courtyards and setback areas enhance the microclimatic performance of the building. The building planning concepts involved five major aspects 

Easy movement and circulation across the building while keeping the building open and nature connected.
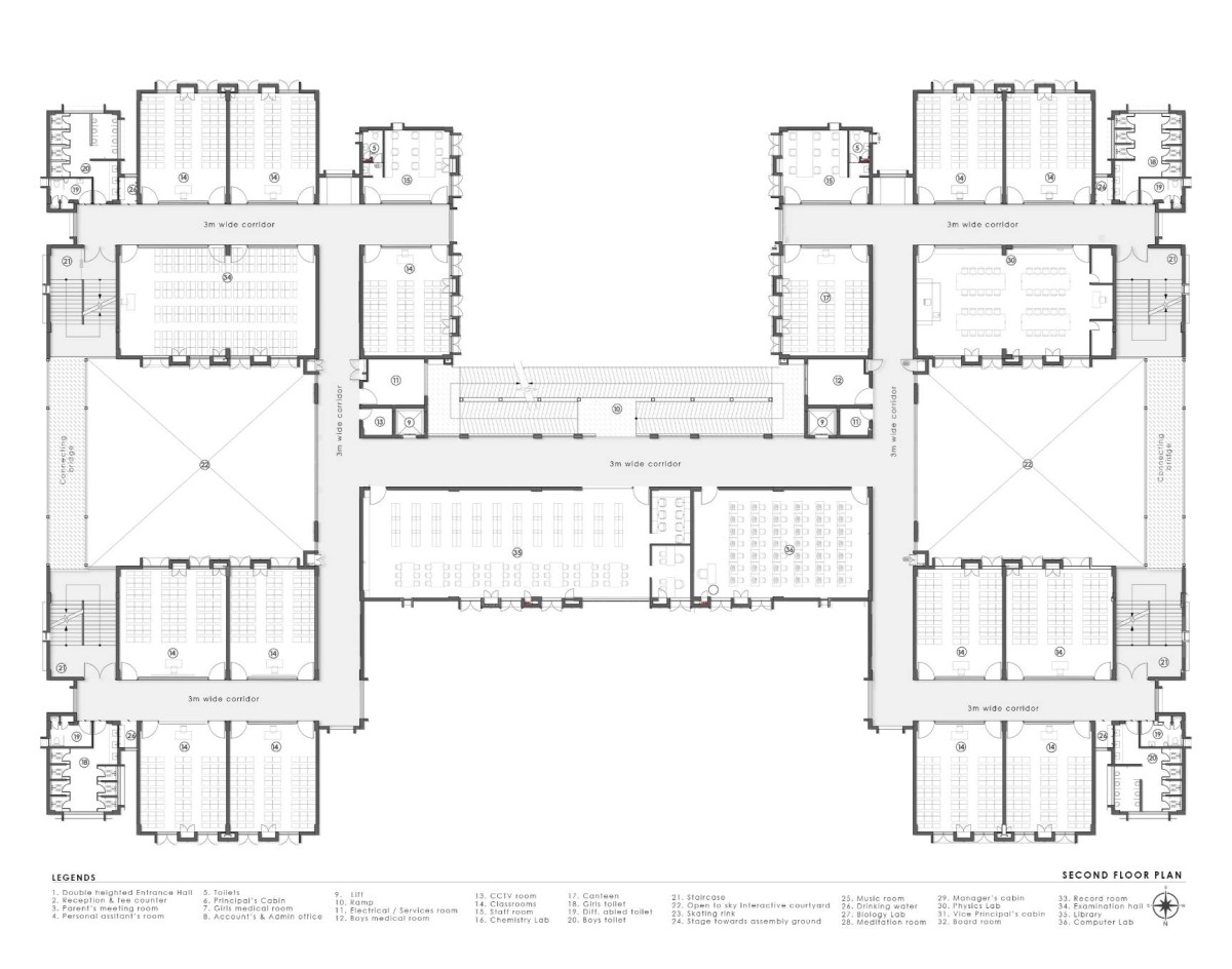
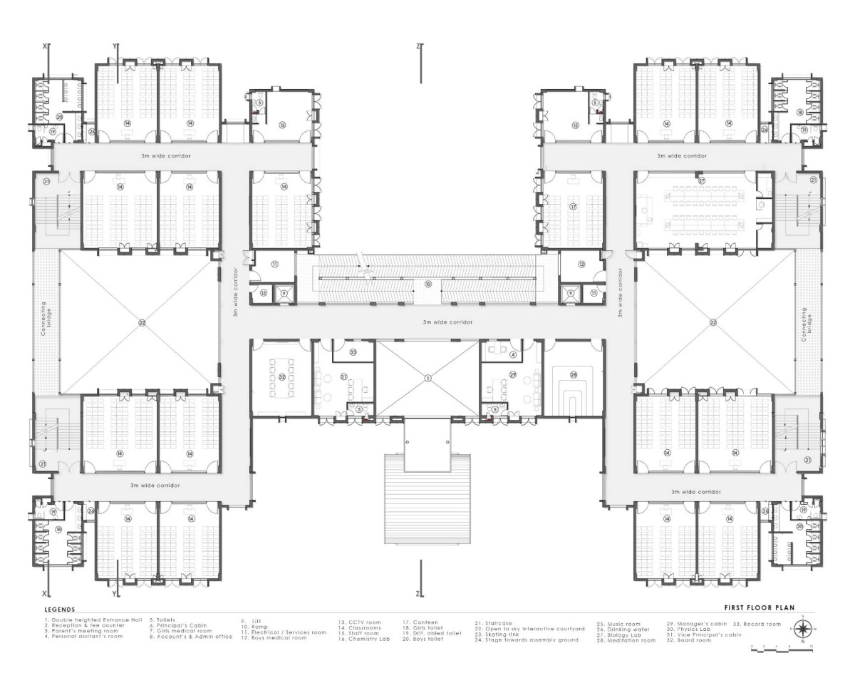
Bringing all the common facilities in the centre block, equally accessible from all the four different wings classified as primary, upper primary, middle and senior.
Ensuring a North-South orientation of the classrooms to capture winter sun while avoiding a direct hit in the summer months. 
A through and through vision of the corridors and common areas, ensuring safety and security of the students 
Bringing an identity and sense of belongingness through architecture.

Nuh,Haryana,India

Architects : Myspace Architects
Area : 95,615 sq. ft.
Year of Completion : 2025
Website : https://www.instagram.com/myspace_architects/

Exterior view of Maria Manzil School by Myspace Architects


Exterior view of Maria Manzil School by Myspace Architects


External facade of Maria Manzil School by Myspace Architects


Exterior view of Maria Manzil School by Myspace Architects


Entrance Porch with Arched Canopy above of Maria Manzil School by Myspace Architects

The entrance porch (a welcome Dome) is designed to break the monotony of the regular massing and welcome the students through an engaging array of arches, denoting the sacredness of the place of learning. Designed to be a free-standing brick vault, is a composite structure made out of both brick and RCC, the vault merges with a metal frame which is hung from the column above, to welcome the visitors into the school lobby. 


Entrance Porch with Arched Canopy above of Maria Manzil School by Myspace Architects


Open to Sky Interactive Courtyard of Maria Manzil School by Myspace Architects


Open to Sky Interactive Courtyard of Maria Manzil School by Myspace Architects


Open to Sky Interactive Courtyard of Maria Manzil School by Myspace Architects

The major central circulation(vertical) spine is created through a ramp which links the two opposite wings, while a metal bridge horizontally links the adjacent wings. A unique circulation core (vertical + horizontal) is designed in a combination of two stair case blocks with a central connecting bridge, placed at the two ends of the building. This circulation core is directly linked to the amenity blocks with toilets and drinking water units, forming the two ends of the building encompassing two smaller interactive courtyards. The Red Bridges with perforated metal sheets, gives breath-taking views of the Aravalli hills and surrounding farmlands, while forming an interesting part of the elevation. 


Dusk light interactive courtyard view of Maria Manzil School by Myspace Architects


Corridor of Maria Manzil School by Myspace Architects 07


Corridor of Maria Manzil School by Myspace Architects 07

The building is planned to create views and vistas towards every direction while allowing for ample airflow and sun light within the building. The main corridor in the central wing, frames the view of inner courtyards and bridge in either direction, while all the internal corridors frame a view of the exterior landscape with no dead ends.

The corridors are designed to be interactive, to indulge with students on a daily basis. Small pockets and interactive corners are created to encourage creative expression and student engagement, transforming the common areas into open discussion forums. Elevation features are designed to be interactive with the students while leaving a long-lasting impression in the minds of children.  

A vivid material palette is chosen to achieve a cohesive aesthetics, contributing to a welcoming and inspiring environment, yet reinforcing the functional usability of the materials. And a colour palette of white, grey and red enhances the relationship of building with nature, while evoking a sense of openness and freedom. 


Corridor of Maria Manzil School by Myspace Architects 07


Ramp of Maria Manzil School by Myspace Architects


Aerial view of Maria Manzil School by Myspace Architects


Site Plan of Maria Manzil School by Myspace Architects


Front elevation of Maria Manzil School by Myspace Architects


Ground floor plan of Maria Manzil School by Myspace Architects


First floor plan of Maria Manzil School by Myspace Architects


Second floor plan of Maria Manzil School by Myspace Architects


Section XX of Maria Manzil School by Myspace Architects


Section YY of Maria Manzil School by Myspace Architects


Section ZZ of Maria Manzil School by Myspace Architects


Section through Admin block of Maria Manzil School by Myspace Architects


Section through Internal courtyards & Ramp of Maria Manzil School by Myspace Architects




Most Visited Articles




Subscribe

Get our latest article and updates delivered straight to your inbox.