Text provided by Architect


Nivriti: Where Light Rests on Stone and Timber
An open, crafted sanctuary in Arimbur where tradition and modernity find balance

Tucked away in the quiet landscape of Arimbur, Thrissur, Nivriti unfolds as a residence that is equal parts retreat and homecoming. Designed for an NRI family who inhabits it briefly each year, the house was conceived as a sanctuary inviting in its warmth, yet secure and grounded in its setting.

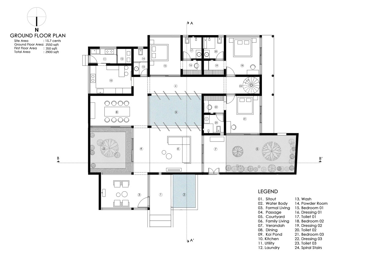
The planning draws strength from its openness. Spaces are composed as a series of flowing sequences rather than isolated rooms. Living, semi-private, and private areas are linked by transitional corridors, each revealing a courtyard or garden pocket along the way. These green voids function as lungs of the home channeling air, light, and calmness into the interiors. Every threshold is an invitation to pause, reinforcing the intimate relationship between house and landscape.

Craft and tradition enrich the contemporary spatial character. Floors patterned with Athangudi tiles bring vibrancy underfoot, their intricate motifs echoing the cultural lineage of South India. A winding spiral staircase introduces a sculptural moment within the home an upward journey culminating in a timber lined attic, where the material warmth transforms the atmosphere into one of quiet retreat.

Thrissur,Kerala,India

Architects : i2a Architects Studio
Area : 2,900 sq. ft.
Year of Completion : 2025
Website : https://instagram.com/i2aarchitects?utm_medium=copy_link

Exterior view of Nivriti 2.0 by i2a Architects Studio


Exterior view of Nivriti 2.0 by i2a Architects Studio


Exterior view of Nivriti 2.0 by i2a Architects Studio


Waterbody of Nivriti 2.0 by i2a Architects Studio


Verandah of Nivriti 2.0 by i2a Architects Studio


Formal living of Nivriti 2.0 by i2a Architects Studio


Koi Pond of Nivriti 2.0 by i2a Architects Studio


Koi Pond of Nivriti 2.0 by i2a Architects Studio


Family living of Nivriti 2.0 by i2a Architects Studio

Inhabitation is further elevated by the dialogue between material and landscape. Timber framed windows and sliding doors blur boundaries, dissolving the line between garden and living space. Stone clad walls, in contrast, assert permanence and grounding, while slatted wooden screens filter sunlight, lending privacy without denying openness. The interiors breathe with restraint: patterned floors anchor the living areas, while soft furnishings and crafted details layer in warmth and tactility.


Family living of Nivriti 2.0 by i2a Architects Studio


Passage of Nivriti 2.0 by i2a Architects Studio


Courtyard of Nivriti 2.0 by i2a Architects Studio


Dining of Nivriti 2.0 by i2a Architects Studio


Dining of Nivriti 2.0 by i2a Architects Studio


Lounge of Nivriti 2.0 by i2a Architects Studio

The architecture of Nivriti is not about spectacle but about balance. It negotiates openness with seclusion, modern comforts with traditional craft, and the ephemeral qualities of light and air with the enduring solidity of stone and timber. In doing so, it becomes more than a holiday home. It becomes a place of return, rest, and rootedness a personal sanctuary in Thrissur that welcomes its family each year with the quiet assurance of belonging.


Spiral Staircase of Nivriti 2.0 by i2a Architects Studio


Bedroom of Nivriti 2.0 by i2a Architects Studio


Bedroom 2 of Nivriti 2.0 by i2a Architects Studio


Site Plan of Nivriti 2.0 by i2a Architects Studio


Ground Floor Plan of Nivriti 2.0 by i2a Architects Studio


First Floor Plan of Nivriti 2.0 by i2a Architects Studio


Section AA of Nivriti 2.0 by i2a Architects Studio


Section BB of Nivriti 2.0 by i2a Architects Studio




Most Visited Articles




Subscribe

Get our latest article and updates delivered straight to your inbox.