Architecture

07-04-2026

Photographer : Hamdan Muhammed

Text provided by Architect 

What seemed like an otherwise mundane site in Nileswar, found its anchor in a single force of nature: a majestic banyan tree, whose vast canopy extended deep into the project’s domain. It was this presence that breathed life into the project. Petra emerged as a collection of gestures towards the tree's presence. This 5,000 ft² family home moves beyond the conventional and blends form and function into a living breathing structure. Taking from the banyan’s expansive roots and the client’s deep passion for geology, Petra is an expression of The Stone and The Banyan. 

Petra’s uniqueness lies in its details: thoughtful, subtle, and tied back to its core ideas. The screen design for the sweeping corner window, for instance, was manually traced out of the banyan’s actual aerial roots. In another instance, the grooves on the façade were, in reality, abstractions of the branches of this majestic tree.

From the custom-made artwork to the 3D installations, from the pool tiles to the railing profiles and even the main door - each element carries the banyan within. At times it hides in abstractions or symbolism; at others, it emerges as engravings or subtle impressions woven into the materiality. 

Kasargod,Kerala,India

Architects : Ta-Da Design Collective
Area : 4800 sq. ft.
Year of Completion : 2025
Website : https://www.instagram.com/tada_design_collective/

South Facade of Petra by Ta-Da Design Collective


Exterior View of Petra by Ta-Da Design Collective


Front Lawn of Petra by Ta-Da Design Collective

A good design is rarely accidental. At Petra, every placement has logic behind it.

The built mass sits at the center of the site, allowing a generous backyard, a welcoming front lawn and optimal shade from the banyan. The form is a composition of 2 parallelly placed blocks, staggered with respect to each other. The masses were split to allow airflow into the main structure by inducing a buffer area in between where the openings were strategically placed to facilitate air movement. The staggered nature of the blocks produces a more dynamic form and creates nooks and niches which allow opportunities for elements of interest. 

Anchoring these blocks, is a long, linear wall at the front, acting as a visual screen, a structural element and most importantly, a curtain-lift to the magnificence of the house. The layered form was brought to life by imagining spaces in 3D volumes, not 2D areas, and how these volumes should interact with each other, physically and visually. 


Shallow Pond of Petra by Ta-Da Design Collective


Backyard of Petra by Ta-Da Design Collective


Backyard of Petra by Ta-Da Design Collective


Car Porch of Petra by Ta-Da Design Collective


Colonnade of Petra by Ta-Da Design Collective


Colonnade of Petra by Ta-Da Design Collective


Custom Main Door of Petra by Ta-Da Design Collective


Living Area of Petra by Ta-Da Design Collective

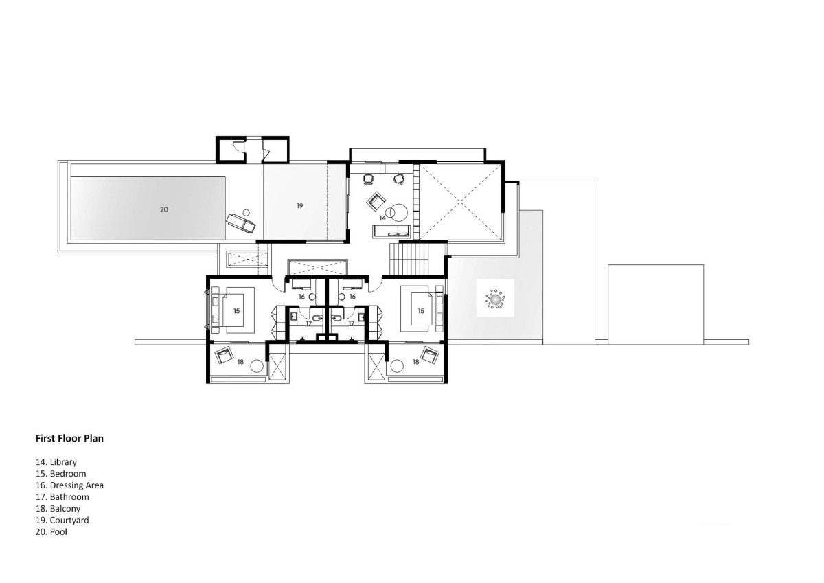
Internally, the house is separated into 2 zones. The northern block houses common areas (living, dining, kitchen) and encourages interaction, and southern block houses private areas (bedrooms, bathrooms) and ensures seclusion, separated by the buffer zone, housing the staircase and the wash area. 

The southern block follows the site’s natural contours, allowing gentle level shifts instead of flattening the terrain. This creates spatial continuity on the upper floor, most notably in the study, which enjoys an uninterrupted view through the deck to the pool. The placement of the pool on the first floor, west side, accomplished 2 things:  privacy, owing to the adjacent temple - which restricts vertical development on that edge - and freeing up the ground floor for landscaping.

A good design is most certainly not accidental.


Living Area of Petra by Ta-Da Design Collective


Living Area of Petra by Ta-Da Design Collective

The exterior uses raked cement plaster with leather-finish black granite, whose textured undulations glow dramatically when lit. Granite, chosen for its hardness and weather resistance, appears throughout the house, reflecting the client’s deep knowledge of geology.

The finishes for the interiors have been carefully chosen to maintain a neutral and minimal color palette, the different shades of grey for the walls and ceilings, for instance. The only color applied is to that of the custom-made art pieces. Keeping in harmony with the muted colors, neutral oak-colored mica, veneers for kitchen cabinets and a grey counter top were chosen by the architects.

Ultimately, Petra stands as a reminder that great design comes from clarity. What appears simple at first glance reveals layers of thought - details that make sense, materials chosen with purpose and spaces shaped through logic. In the end, it’s all about creating a unique, but deeply rooted home for its users. ‘The details need not always be complex and philosophical. Most times, they lie in coherence and rootedness.’


Dining Area of Petra by Ta-Da Design Collective


Kitchen of Petra by Ta-Da Design Collective


Kitchen of Petra by Ta-Da Design Collective


Kitchen of Petra by Ta-Da Design Collective


Custom Washbasin (Stoneborn) of Petra by Ta-Da Design Collective


Master Bedroom of Petra by Ta-Da Design Collective


Master Bedroom of Petra by Ta-Da Design Collective


Guest Bedroom of Petra by Ta-Da Design Collective


Guest Bedroom of Petra by Ta-Da Design Collective


Bedroom 3 of Petra by Ta-Da Design Collective


Bedroom 4 of Petra by Ta-Da Design Collective


Study of Petra by Ta-Da Design Collective


Study of Petra by Ta-Da Design Collective


Terrace Garden of Petra by Ta-Da Design Collective


Swimming Pool of Petra by Ta-Da Design Collective


Night Exterior View of Petra by Ta-Da Design Collective


Ground Floor Plan of Petra by Ta-Da Design Collective


First Floor Plan of Petra by Ta-Da Design Collective




Most Visited Articles




Subscribe

Get our latest article and updates delivered straight to your inbox.