Named after the traditional Tamil word Ranthal, meaning lantern, this residence draws its identity from the quiet strength and glow of a light source that illuminates from within. Conceived as an inward-facing home with a modest street presence, Ranthal House is designed to reveal its richness gradually — much like a lantern that comes alive after dusk, casting intricate patterns through its frame.

The client’s brief was clear: a home that is private, simple in its outward expression, and filled with light and warmth on the inside. In response, the architecture embraces a restrained exterior while unfolding an inner world of light, space, and texture. The façade remains subtle and composed, anchored by clean lines and earthy materials, but the true drama lies within.

Central to the spatial experience are a series of carefully designed cutouts and light pockets. These voids bring daylight deep into the core of the house and frame shifting patterns of shadow and light through the day. The interiors are defined by this play of light — dynamic, soft, and layered — creating an ever-changing mood that responds to time and season.

Wooden louvres line sections of the outer envelope, evoking the slatted construction of a traditional ranthal. At night, as warm light spills out through these screens, the house transforms — casting a patterned glow outward, illuminating its surroundings softly while preserving the sense of enclosure and privacy. It becomes a lantern in the urban fabric, glowing gently from within. 

 Spread over 9,000 square feet, this 5-bedroom residence in Coimbatore reflects a harmonious blend of climate-responsive design, material honesty, and spatial fluidity. Anchored around a central courtyard, the house is designed to foster a sense of openness while offering moments of privacy, calm, and warmth through carefully articulated spaces and textures.

Coimbatore,Tamil Nadu,india

Architects : Kru Architecture and Interiors
Area : 9000 sq. ft.
Year of Completion : 2023
Website : https://www.instagram.com/kru_design.in/

Exterior view of Ranthal House by Kru Architecture and Interiors


Foyer of Ranthal House by Kru Architecture and Interiors


Entrance of Ranthal House by Kru Architecture and Interiors

Entry into the home is marked by a modest foyer that opens into a double-height courtyard — the heart of the residence — aligned with a pooja room at its far end. This courtyard subtly divides the formal living area from the dining space while visually and spatially connecting the entire ground floor. A sculptural folded staircase in exposed concrete rises alongside the dining area, offering glimpses across levels and reinforcing the openness of the layout.

The material palette is kept deliberately neutral and grounded. Various patterns and inlays of Kota stone define the flooring across the home, providing both durability and thermal comfort. Ceilings in select areas are left exposed, revealing the natural texture of concrete, while teak wood accents in doors, trims, and screens add a tactile warmth and a sense of crafted elegance.                    


Double Height Court of Ranthal House by Kru Architecture and Interiors

At the core of the home’s sustainability and comfort strategy is the central courtyard. Functioning as a passive cooling element, it promotes natural ventilation by drawing in cooler air and allowing warm air to escape through high-level ventilators above. This stack-effect ventilation, combined with the shaded verandas and deep balconies, significantly reduces heat gain and enhances indoor comfort throughout the year.


Living room of Ranthal House by Kru Architecture and Interiors


Living room of Ranthal House by Kru Architecture and Interiors


Lounge of Ranthal House by Kru Architecture and Interiors


Dining of Ranthal House by Kru Architecture and Interiors


Dining of Ranthal House by Kru Architecture and Interiors


Dining to Pooja room view of Ranthal House by Kru Architecture and Interiors


Pooja room of Ranthal House by Kru Architecture and Interiors


Children's Lounge of Ranthal House by Kru Architecture and Interiors


Bedroom of Ranthal House by Kru Architecture and Interiors

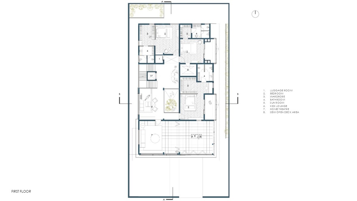
The ground floor houses two bedrooms positioned in the southwest and northwest corners, offering privacy and seclusion. The upper-level hosts three additional bedrooms. The rooms on the northern side open to balconies fitted with vertical wooden screens, which offer privacy while reducing direct solar gain. These shaded transitional spaces act as buffers, protecting the interiors from Coimbatore’s harsh sun while creating outdoor extensions of the bedrooms.  


Bedroom 2 of Ranthal House by Kru Architecture and Interiors

On the eastern side of the first floor is a semi-open hall, designed to accommodate larger gatherings and social occasions. This versatile space features collapsible wooden slat partitions, allowing the space to transform from a contained lounge to an open extension that flows into the outdoors. The design embraces flexibility, blurring the boundaries between inside and out.  


Bedroom 3 of Ranthal House by Kru Architecture and Interiors


Study Area of Ranthal House by Kru Architecture and Interiors


Semi-open deck of Ranthal House by Kru Architecture and Interiors

Every aspect of this residence — from the raw material finishes to its carefully considered orientation — speaks to a design ethos that is understated, responsive, and enduring.


Dusk light exterior view of Ranthal House by Kru Architecture and Interiors


Ground Floor Plan of Ranthal House by Kru Architecture and Interiors


First Floor Plan of Ranthal House by Kru Architecture and Interiors


Section A of Ranthal House by Kru Architecture and Interiors


Section B of Ranthal House by Kru Architecture and Interiors




Most Visited Articles




Subscribe

Get our latest article and updates delivered straight to your inbox.