Architecture

16-07-2025

Photographer : Abhimanyu K V

This striking residence is a testament to the seamless fusion of traditional architectural elements with contemporary aesthetics. Designed with an emphasis on natural materials and open spaces, the home embraces a warm and earthy palette that complements its lush surroundings.

The exterior showcases a bold A-frame roof with exposed steel rafters, a nod to vernacular architecture, while modern white walls and terracotta cladding create a balanced visual contrast. Large openings ensure natural light floods the interiors, establishing a seamless indoor-outdoor connection.

Inside, a soothing green color palette defines the space, harmonized by wooden furniture and natural stone flooring. The open-plan dining and living areas exude a sense of calm, with handcrafted teak wood furniture adding a layer of timeless elegance. The kitchen, marked by a bold brick accent wall, integrates functionality with aesthetic appeal, making it the heart of the home.

The private spaces continue this design language, with expansive balconies offering panoramic views of the landscape. The bedrooms are crafted as intimate sanctuaries, with custom-built shelving, soft drapery, and a natural material palette enhancing the cozy atmosphere. A loft-like mezzanine and carefully curated decor elements further elevate the design narrative.

Rooted in sustainable principles, the project prioritizes cross-ventilation, locally sourced materials, and passive cooling techniques, ensuring a home that is as environmentally conscious as it is visually captivating.

This residence is more than just a house—it is a harmonious retreat where modernity meets tradition, creating a timeless living experience.

Coimbatore,Tamil Nadu,India

Architects : BUHO Architects
Area : 2000 sq. ft.
Year of Completion : 2025
Website : https://www.instagram.com/buho__architects/

Exterior of Shabz Villa by BUHO Architects


Living area of Shabz Villa by BUHO Architects


Living area of Shabz Villa by BUHO Architects


Living area of Shabz Villa by BUHO Architects


Dining area of Shabz Villa by BUHO Architects


Dining area of Shabz Villa by BUHO Architects


Dining area of Shabz Villa by BUHO Architects


Courtyard of Shabz Villa by BUHO Architects


Kitchen of Shabz Villa by BUHO Architects


Kitchen of Shabz Villa by BUHO Architects


Staircase of Shabz Villa by BUHO Architects


Upper living area of Shabz Villa by BUHO Architects


Bedroom of Shabz Villa by BUHO Architects


Bedroom of Shabz Villa by BUHO Architects


Front Elevation of Shabz Villa by BUHO Architects


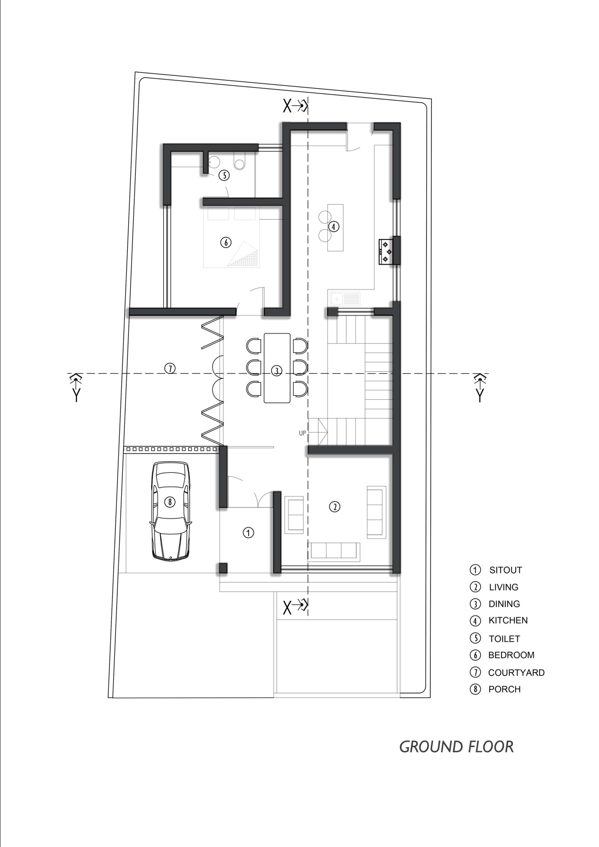
Ground Floor Plan of Shabz Villa by BUHO Architects


First Floor Plan of Shabz Villa by BUHO Architects


Roof Plan of Shabz Villa by BUHO Architects


Section XX of Shabz Villa by BUHO Architects


Section YY of Shabz Villa by BUHO Architects




Most Visited Articles




Subscribe

Get our latest article and updates delivered straight to your inbox.