Architecture

22-07-2025

Photographer : Hosh Pictures

Located in a tight urban fabric near a main district road and the Chennai Metro Rail corridor, Suvadu – Annai Sita Illam is a compact yet deeply layered residence that traces memory and anchors generational connection. “Suvadu” (சுவடு) in Tamil translates to trace, mark, or footprint—a concept that underpins the architectural philosophy of this home. Every built edge, shaft of light, and surface finish becomes a subtle imprint of remembrance, grounding a global family in their ancestral roots and shared spatial memory.

The site sits within a dense residential neighborhood in the heart of Chennai’s southern suburbs. Measuring 26’ x 87’, it was carved out of a larger 52’ x 87’ ancestral property. Previously home to a traditional residence surrounded by mango trees, a hand-dug well, and generous open space, the plot is now tightly flanked by residences but remains accessible from a main road and sits in proximity to the metro rail corridor—demanding a calm interior refuge from the city's chaos.

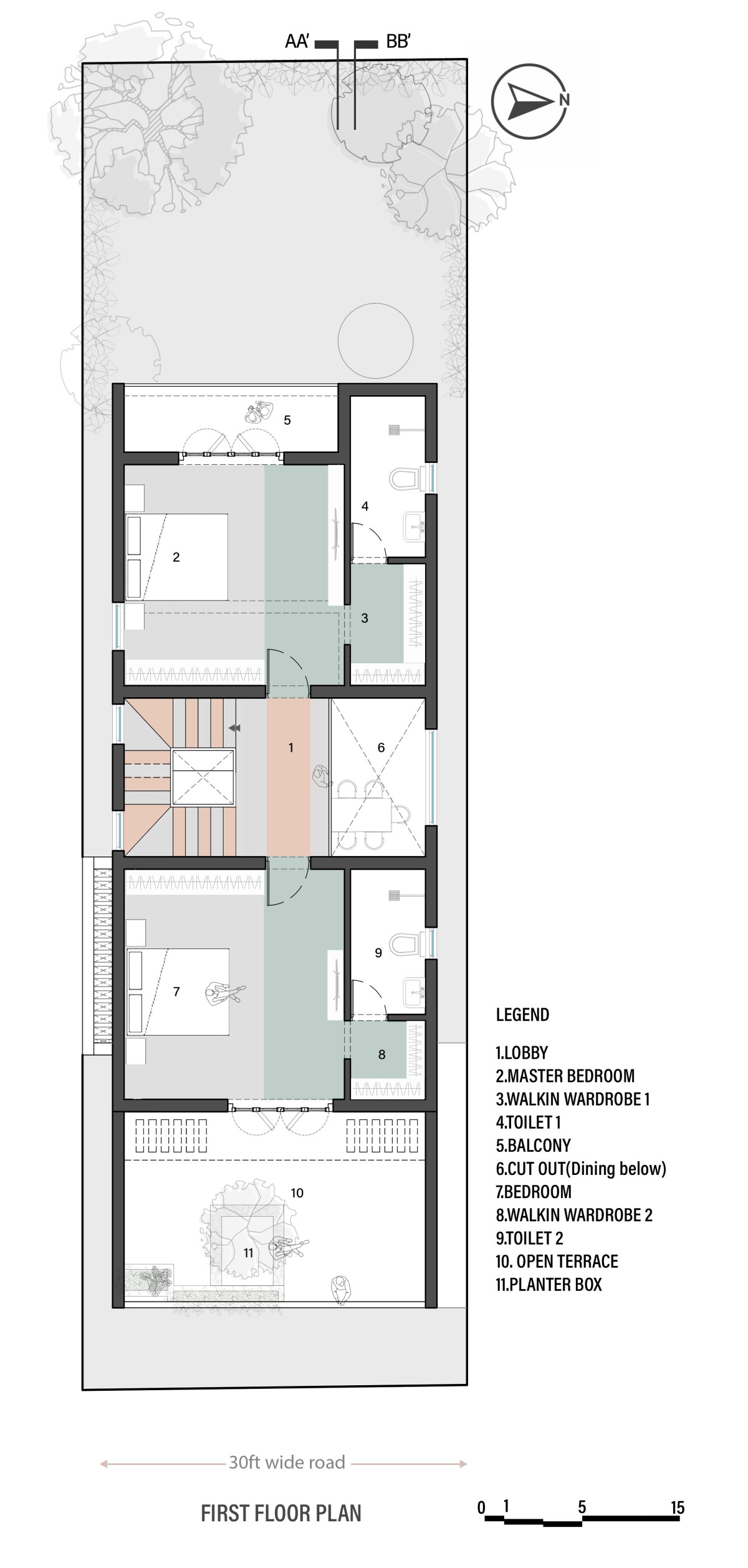
The house was designed for Sita, a 70-year-old matriarch, as her permanent residence. Equally important, it was to serve as a homecoming space for her children and grandchildren, now living abroad. The brief called for a compact house that could embody the spirit of the old home while accommodating multigenerational use and contemporary comforts. The design approach focused on spatial continuity, light-filled volumes, and material memory—ensuring the house became both emotionally resonant and climatically comfortable.

Chennai,Tamil Nadu,India

Architects : D.L.E.A
Area : 2640 sq. ft.
Year of Completion : 2025
Website : https://www.instagram.com/d.l_e.a

Exterior view of Suvadu by D.L.E.A


Living to Pooja area view of Suvadu by D.L.E.A


Ceiling of Suvadu by D.L.E.A


Triple-Height Stair Volume of Suvadu by D.L.E.A

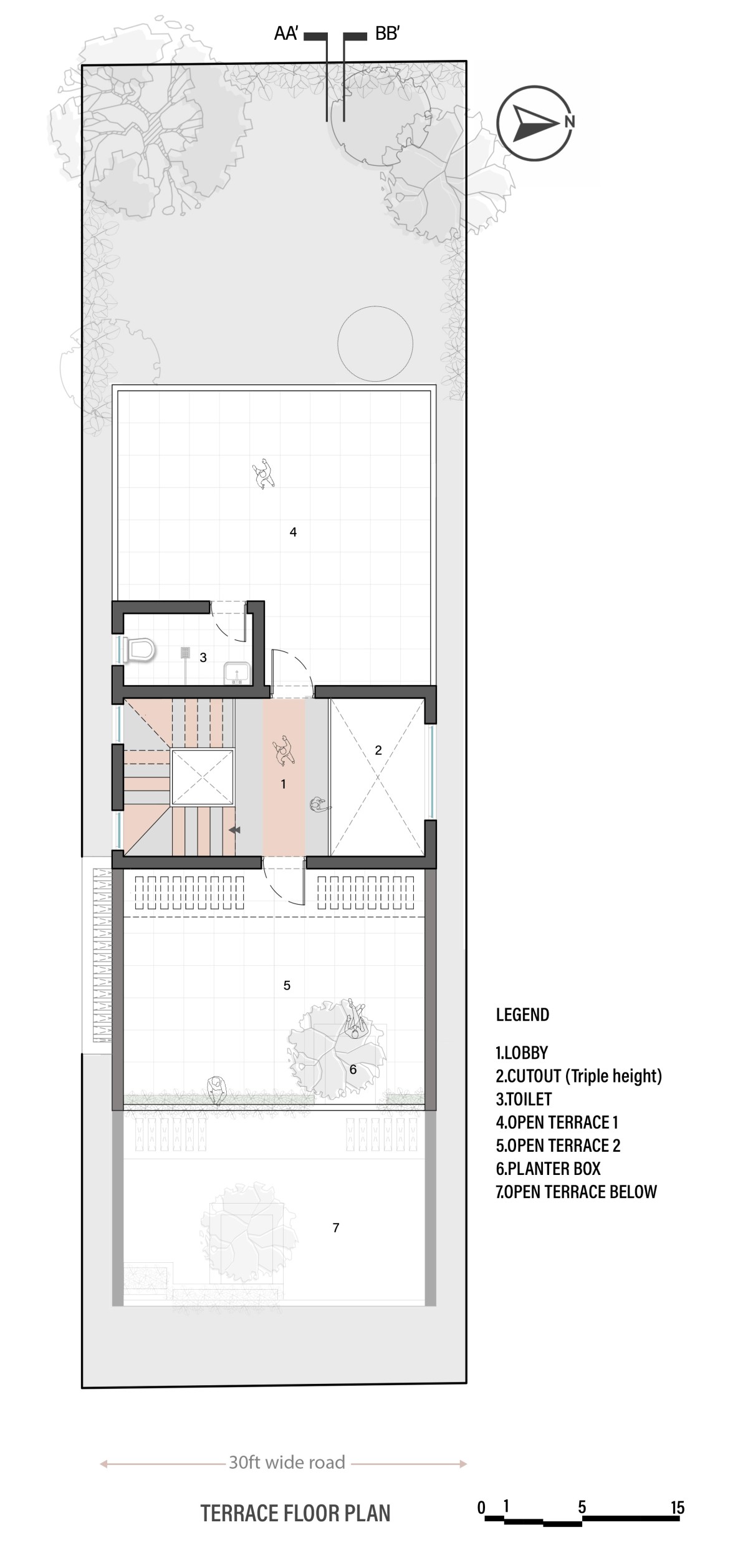
The home is organized around a triple-height volume along the northern edge—bringing in daylight, facilitating visual connections, and becoming the vertical spine of interaction. The east-facing frontage allows soft morning light to flood the interiors. Stepped terraces at the front form playful, interconnected outdoor volumes—spaces where the grandmother can sit and observe, while grandchildren play and explore above. These terraces become platforms for familial connection, story-sharing, and rootedness.

The rear of the house preserves the site’s original mango trees and ancestral well—both consciously retained as cultural and spatial anchors. The backyard now doubles as a shaded play space and garden, allowing the grandchildren to connect with nature and family history. The well, once integral to daily life, has been restored as a symbolic and living memory—a quiet homage to generational legacy.


Triple-Height Stair Volume of Suvadu by D.L.E.A


Stairwell of Suvadu by D.L.E.A


Leaf-Stamped Ceiling Detail of Suvadu by D.L.E.A

Material choices emphasize handcrafted tradition and thermal responsiveness. Floors are finished in red, green, and grey oxide; exposed concrete walls and pot filler slabs on the roof enhance thermal comfort while reducing energy loads. A distinct design element is the use of leaf imprints on the staircase landing and ceilings—capturing traces of the trees that once grew on-site, and transforming surfaces into tactile stories. Together, these material decisions root the project in vernacular sensibility while delivering spatial freshness.

One of the key challenges was translating the openness and emotional memory of the previous home into a narrow urban plot with tight setbacks. The solution came through verticality, cross-level views, and layered light—replacing the idea of open courtyards with stepped terraces and split volumes.


Bridge view of Suvadu by D.L.E.A


Front Terrace View of Suvadu by D.L.E.A

The front terraces remain the architects’ favorite space—where generational presence is felt without words. Grandmother and child, across levels, remain connected by light, gesture, and shared air. This emotional layering is what defines Suvadu.


Front Terrace View of Suvadu by D.L.E.A


Dusk light exterior view of Suvadu by D.L.E.A


Aerial view of Suvadu by D.L.E.A


Aerial view of Suvadu by D.L.E.A


Night shot of Aerial view of Suvadu by D.L.E.A


Ground Floor Plan of Suvadu by D.L.E.A


First Floor Plan of Suvadu by D.L.E.A


Terrace Floor Plan of Suvadu by D.L.E.A


Section BB of Suvadu by D.L.E.A


Isometric view of Suvadu by D.L.E.A




Most Visited Articles




Subscribe

Get our latest article and updates delivered straight to your inbox.