Architecture

20-01-2026

Photographer : Inclined Studio

Text provided by Architect

The house is a statement of pure sentiment, honor, and elegance. Villa ___ was curated with a certain ideology that the clients had to offer. Designing a home with a subtle aura and element play was an extremely unique yet challenging task. 

The orientation of the mansion is designed to reflect the vernacular aesthetics in the design. The massing is thoughtfully porous, opening to various landscapes in all directions. While the north and east facades enjoy a panoramic open lawn in front, the west faces an intimate backyard space. The harsh southern heat is mitigated by minimal openings while housing service areas. Response of any architecture to the site marks its ecological landmark. A northeast-facing massing was designed to take in ample natural light while mitigating the southern sun of Ahmedabad adding value to the built. 

A bamboo canopy welcomes one to meander through the soothing entry plaza, with Kota stone flooring, that instantaneously evokes a breezy, homely feeling. The islanded trees create a childlike zeal directing one to the abode, while the altering bamboo screens fabricate ‘purdahs’ of privacy within. These bamboo trellises exhibit an excellent play of shadows with their visual display.

A forthright cozy sitting room is uncovered as one walks into the villa. This secluded formal living is also a meeting space for the client to enjoy a pleasant view and maintain intimacy inside the home. The home office in front of the living also carves a private space for the client. Upon entry, the second main door welcomes residents into an artisanal courtyard through the passage, leading gracefully into rustic kitchen and dining spaces beyond. 

Ahmedabad,Gujarat,India

Architects : VPA Architects
Area : 26,555 sq. ft.
Year of Completion : 2025
Website : https://instagram.com/vpaarchitects?utm_medium=copy_link

Exterior view of The Evert House by VPA Architects


Porch of The Evert House by VPA Architects


Porch of The Evert House by VPA Architects


Drawing room of The Evert House by VPA Architects

The house's receptiveness fosters peace, offering a direct visual connection to the surrounding landscape through its open plan. The spaces' architecture mirrors the residents' moral values, where an interconnected trinity of kitchen, living, and dining areas fosters close familial bonds. The dining can extend into a supper space connecting the garden, adjoining the raw brick backdrop seamlessly into an outdoor barbeque hub. This plan’s transparency allows ample natural light, a direct connection to the outdoor greens, and a luxurious, breezy living plus dining. The brick wall that stands tall between the kitchen and outdoor barbeque creates a continuity of earthy texture inside out. 

An admirable guest room is curated beyond the home office. The room inhibits a multipurpose washroom cum spa- the haven of the house. The mother’s room adjoins the guest room in a restful alcove. 


Passage of The Evert House by VPA Architects


Double Height Courtyard & Pooja Mandir of The Evert House by VPA Architects

The central sky-lit courtyard is the heart of this bungalow. Extravagance is shown through modesty in this museum-like space. The ornamented wall is a memoir of an ancestral collection of wooden furniture, handed down through generations within the residents’ family. The fabric of the seating and decorative elements are handpicked and designed to humble the grandeur of this elevating courtyard. The courtyard is sanctified by the placement of the temple adorning a textured wall.

Ascending the stairway, the layout is designed to transition into more private areas, specifically the bedrooms nestled away from the main thoroughfare. The private bedroom, currently occupied by the client’s brother, opens onto a tranquil open terrace oriented towards the east. His bathroom opens in a pacific courtyard- a metaphor that this house is, it connects the landscape everywhere within. 

Other rooms include a master bedroom featuring a grand balcony and a children's room adorned with vibrant details contrasting with its subtle interiors. The children’s room gives splashes of green in otherwise subtle and earthy interiors. 


Double Height Courtyard of The Evert House by VPA Architects


Double Height Courtyard of The Evert House by VPA Architects


Double Height Courtyard of The Evert House by VPA Architects


A curated wall of family memories of The Evert House by VPA Architects


First floor lobby of The Evert House by VPA Architects

North-facing rooms house an indoor gym and a yoga terrace, capturing the essence of peaceful living and a seamless aura. The circulation flows around the double-height courtyard, ensuring a continuous visual connection and achieving an ideal harmony between private sanctuaries and shared areas within the home.
 
The house underlines creativity in a cost-effective and ecological design through reclamation and upcycling old wood into new furniture pieces. The overall materiality of this project portrays an earthy and unique aesthetic. It has modernity, with a touch of classicality. The major elevation is enhanced by the bamboo screen entrance and a flying girder, whereas the rest aesthetic is proclaimed by wood furniture, brick walls, and the landscape within. The interiors stand out by the cane and warm lighting with neutral plastered walls. 

Our motto through the design process was to provide an interior that brings about attachment by reconstructing old furniture into the felt comfort of new chairs and tables. Upcycling old furniture into an alluring interior- that translates tottery furniture into classical masterpieces mixed with the poetic fluidity of modernism is the innovation we aimed to achieve through this design. There are visible nuances like the chair frames and graphic carpet being metaphors for a nostalgic design. In contrast, the geometric centerpiece and cushion covers are edgy and modern in the living area. 


Skylight of The Evert House by VPA Architects


Bedroom of The Evert House by VPA Architects


Bedroom of The Evert House by VPA Architects


Bathroom of The Evert House by VPA Architects

The design was meticulously crafted to accentuate every element. Therefore, our foremost priority was to embrace a neutral color palette. Cane fittings and subtly multicolored flooring contribute to the overall refinement and coherence of the home. Bathrooms feature restrained materials such as stone tiles and brass plumbing fixtures. The verdant greens of the plants imbue the home with natural color tones, enhancing its earthy ambiance and creating a seamless connection to the outdoors. For a touch of whimsy, the children's washroom features a vibrant green accent wall.


Bathroom of The Evert House by VPA Architects


Bathroom of The Evert House by VPA Architects


Spa of The Evert House by VPA Architects

Wood is one of the prestigious materials of modern-day design. Along with the availability of sturdy wood, the right aesthetic is also difficult to find. Upcycling wood to preserve the touch and feel of a home proved to be an extremely sustainable solution. Designing and redeveloping old timber furniture created a plethora of ingenious ideas and helped limit the energy consumption of constructing completely new furniture. According to IGBC, every 2,000 sq. ft. of house uses roughly 23 cubic meters of timber. We have re-used approximately 90 percent of the wood from chairs, brackets, and window frames- contributing little to reduce deforestation. These old furniture pieces recreated the current kursi set, wall painting frames from the old window frames, the doors, windows, and wardrobes. 

Apart from sustainability, the project is committed to bringing about- the formation of a sense of place. The familiarity of furniture- the scale, smell, and memory is what we preserved in this house.


Garden of The Evert House by VPA Architects


Dusk light exterior view of The Evert House by VPA Architects


Night exterior view of The Evert House by VPA Architects


West Elevation of The Evert House by VPA Architects


North Elevation of The Evert House by VPA Architects


East Elevation of The Evert House by VPA Architects


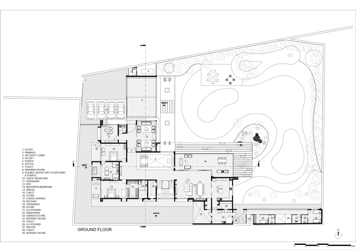
Ground Floor Plan of The Evert House by VPA Architects


First Floor Plan of The Evert House by VPA Architects


Roof Plan of The Evert House by VPA Architects


Section BB of The Evert House by VPA Architects


Section FF of The Evert House by VPA Architects




Most Visited Articles




Subscribe

Get our latest article and updates delivered straight to your inbox.