Interior

19-06-2025

Photographer : Yadnyesh Joshi

Not very often, you come across clients who are extremely free-spirited and uninhibited; people who are not defined by the norms of society. When they conceptualized client's house, they knew it was a lively stream, not a placid river. While rivers wind slowly, gathering water and shaping civilizations along their banks, their design mirrored the youthful energy of a rushing stream akin to that of Nikhil and Anjali. It surged ahead with vigour, embracing its twists and turns as it flowed freely forward.

The design journey of the project commenced with a nod to Japanese minimalism, drawing inspiration from its clean lines and uncluttered aesthetics. Additionally, they found ourselves, inspired by the ethos of Indian architecture, particularly its knack for crafting nested spaces within larger ones. This influence is palpable in their strategic use of wooden columns and screens, which divide the space and infuse it with a sense of intimacy and intrigue, inviting exploration and revelation at every turn. 

The interior of this house authentically reflects the genuine essence and the underlying ethos of their design approach. From the exposed joinery of the table, kitchen cabinets, and bookstand, to the deliberate construction of wooden elements, every detail is laid bare to reveal its true nature, mirroring the transparency and sincerity of their clients. The decorative pegs on the door, the columns and the exposed, raw joinery of the furniture come together to evoke a sense of effortless elegance and lightness. Each element has been intentional yet unforced, celebrating the craftsmanship. The interplay of textures and structural details fosters an atmosphere of openness and fluidity, where design feels both refined and liberated. 

Pune,Maharashtra,India

Architects : Amoeba Design
Area : 2600 sq. ft.
Year of Completion : 2023
Website : https://www.instagram.com/amoeba.design/?hl=en

Living room of The Stream House by Amoeba Design


Living room of The Stream House by Amoeba Design

In order to capture the essence of Indian architectural philosophy, the house emphasizes the creation of layered spaces within a larger volume. A partition system subtly delineates the bedroom into a study area, maintaining a sense of openness while introducing functionality, while the dining space further refines this spatial experience by incorporating wooden columns and beams, which not only define the space but also enhance its intimacy. These architectural elements, along with sheer curtains, evoke a sense of curiosity and gradual revelation, allowing glimpses of the spaces beyond and enriching the overall spatial narrative.

In spite of being inspired by the Japanese minimalism, the geometry of the language doesn’t overpower due to organic and imperfect elements planned around the house. As a matter of fact, the pattern of the stream or wavy line of the skirting become more prominent due to contrast and doesn’t let geometry dominate the aesthetics of the place. The vaulted ceiling adds a bit of drama as the light plays its own magic on the curved surfaces. 

Drawing inspiration from the traditional Shoji paper screens, the wardrobe shutters incorporate frosted glass to echo this aesthetic, creating a subtle homage to the timeless craftsmanship of Japanese design. These meticulously crafted details serve as a visual narrative, seamlessly weaving together to illuminate a significant aspect of client’s honest and authentic personalities, much like the intricate threads of their lives.


Living room of The Stream House by Amoeba Design


Dining of The Stream House by Amoeba Design


Dining of The Stream House by Amoeba Design

The Stream House strikes a delicate balance between geometric precision and the raw beauty of nature's imperfections. Rather than allowing rigid geometries to dominate, the design embraces organic elements, allowing them to take centre stage. The undulating flow of the stream and the gentle curve of the skirting against the wall are accentuated by this juxtaposition, ensuring that geometry never overwhelms the aesthetic.

There's a palpable sense of weightlessness that permeates the space. Whether it's the columns delicately perched on the rugged edges of exposed stone or the vaulted ceilings resting effortlessly on beams, each element exudes a sense of ease and grace. The vaulted ceilings, in particular, introduce a touch of drama, as light dances along their curved surfaces, creating an enchanting interplay of shadows and illumination. 

Art in the Stream House is not just decoration—it's a carefully curated collection that tells a story serving as a timeless homage to the ebb and flow of life. Together, these diverse elements converge to showcase the radiant beauty of imperfection—a testament to the inherent richness and complexity of life within the walls of this home.


Dining of The Stream House by Amoeba Design


Kitchen of The Stream House by Amoeba Design


Kitchen of The Stream House by Amoeba Design


Kitchen of The Stream House by Amoeba Design


Master Bedroom of The Stream House by Amoeba Design


Master Bedroom of The Stream House by Amoeba Design


Son's Bedroom of The Stream House by Amoeba Design


Son's Bedroom of The Stream House by Amoeba Design


Son's Bedroom of The Stream House by Amoeba Design


Daughter's Bedroom of The Stream House by Amoeba Design


Study area of The Stream House by Amoeba Design


Furniture Console & Wallart of The Stream House by Amoeba Design


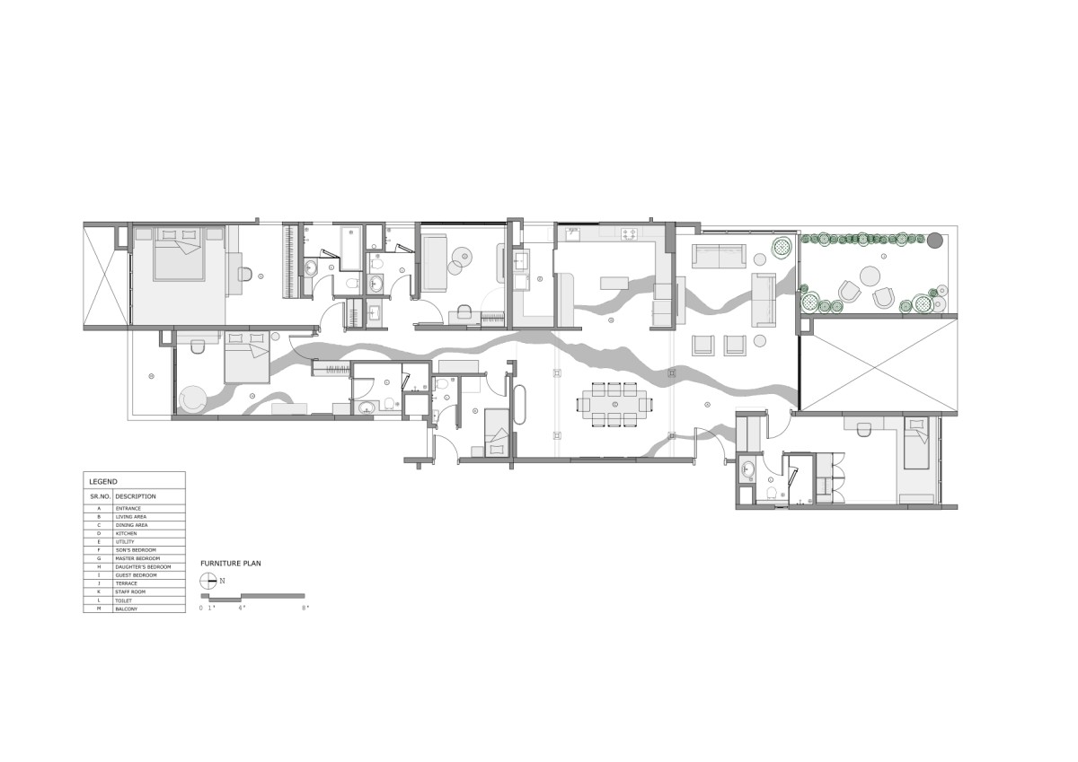
Floor Plan of The Stream House by Amoeba Design


Section A of The Stream House by Amoeba Design


Section B of The Stream House by Amoeba Design




Most Visited Articles




Subscribe

Get our latest article and updates delivered straight to your inbox.