Architecture

10-10-2025

Photographer : Hemant Patil

The clients had always lived in metropolitan city apartments. Being in senior leadership positions, they had always lived a fast life which involved frequent travel.

They had decided to settle down in a quieter location which they found in the suburbs of Pune. They bought a 4000 ft.² plot in a gated community. Client approached them to design a house which would now serve as their primary home. They aspired to have a home which was built to suit their specific requirements with a serene environment while being Vastushastra compliant with luxurious room sizes.

The client’s requirements, the site location, and the context were important starting points for their design process. The site, being a part of a gated community, was surrounded by bungalow plots on the north and west sides. The south and east sides were farmlands which would later be developed into tall housing societies. These potential obstructions in the present views let them start thinking inward.

The shape of the plot helped them with a squareish footprint for the building. They derived the nine squares of Vastupurush as their base grid for the design. The client’s requirements were fulfilled in a ground + 2 structure. This led them to another design intervention of visualising these nine squares in section as well. 

The resultant cube formed was a playground for a volumetric design. They carved out double-height and triple-height volumes to bring in light and ventilation in the entire house. This also brought about visual interaction between all the levels. This was a key factor as they believe that the house should be connected visually as well as audibly, thereby seamlessly connecting all the spaces.

A 1 m slope from the rear side to the front side of the plot helped them to create interesting levels on the ground floor. The rear side of the building was raised by 450 mm creating a spacious living room volume on the front side. The northeast side entrance to the plot gave them an interesting opportunity to frame the building with an interesting parking design in the foreground. Column-free space was created on the northeast corner of the building with all the structural elements concealed seamlessly in the building form and landscape. The main and service entrances are segregated to maintain privacy and security.

The main entrance to the house opens into an entrance lobby with a specially designed feature wall. The feature wall reveals the concept of the nine squares and is inscribed by a combination of English and Devanagari alphabets which form the name "Vishram”.

Pune,Maharashtra,India

Architects : Studio AVP
Area : 3800 sq.ft.
Year of Completion : 2024
Website : https://www.instagram.com/studio_avp/?hl=en

Living room of Vishram by Studio AVP


Living room of Vishram by Studio AVP

The lobby opens up into a triple-height volume which is flooded by sunlight and moonlight. This also serves as a visual connection to all the levels to the entrance lobby. This space merges into the formal living room and the dining area. The living and dining area seamlessly merge into the surrounding landscape having wall gardens. The design allows ample cross-ventilation in the house. The visual connectedness of all the public spaces makes the house look bigger and luxurious. The entire periphery of the house has vertical gardens which are visually appealing from all the interior spaces. The spaces are so designed to create framed views from various levels. One such example is the semi-covered Frangipani tree aligned with the dining table on the rear side.

The dining area is stepped up by 450 MM and is visually separated by a central bridge on the first floor. This simple difference makes it private yet visually seamless.


Living room of Vishram by Studio AVP


Dining of Vishram by Studio AVP


Living room of Vishram by Studio AVP


Dining of Vishram by Studio AVP


Dining of Vishram by Studio AVP


Kitchen of Vishram by Studio AVP


Pooja Mandir of Vishram by Studio AVP

The Pooja room is located on the northeast corner of the house, right next to the entrance. It is divided by a sliding folding door, which allows flexibility in the use of space. The half-cylinder shape of the Pooja creates drama from the interior as well as the exterior of the building. It is cantilevered on a water body which creates a serene environment around the Pooja. 


Atrium of Vishram by Studio AVP


Skylight of Vishram by Studio AVP


Bridge of Vishram by Studio AVP

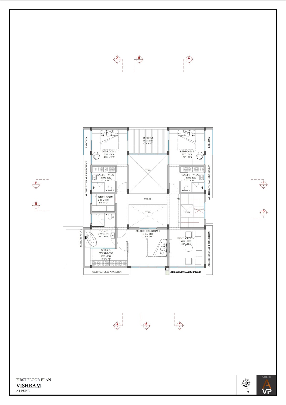
A central bridge connects the bedrooms on the first floor level. The first floor accommodates three bedrooms, a family room, and a laundry room. The second floor houses a master bedroom, two study rooms, and an open terrace. 

All the services are well thought of and are integrated aesthetically throughout the house. None of them are easily visible. They have spent countless hours perfecting their locations and integrating all the services in their 3-D model to arrive at the best possible options. 

Hydro-pneumatic and PEX plumbing systems are used for water connections. They have created a large underground tank with multiple submersible pumps to ensure 3-bar pressure waterlines. They have avoided using an overhead tank to ensure the sanctity of their cube design. They have also devised under-slung plumbing for ease in future maintenance. Latest technology has been integrated in the house from fully automated lighting, curtains, and locks to sensor-based pumps.


Bridge of Vishram by Studio AVP


Family Room of Vishram by Studio AVP


Master Bedroom of Vishram by Studio AVP


Guest Bedroom of Vishram by Studio AVP


Bedroom 3 of Vishram by Studio AVP

They have carefully tailored the material palette and restricted themselves to a handful of materials. The exterior cube of the building is wrapped with concrete finish, and the first floor juts out on all sides and is accentuated with a wooden finish. The projection of the first floor not only breaks the monotony of the cube but also provides a function, protecting from the natural elements, like blocking the sun and the rain. The concrete finish flows into the interior space, thereby creating a seamless connection between the outdoors and indoors. The teak wood texture used in the exteriors is continued in the interior design. 

As the sunlight is flooded through the skylight and the double-height facade of the dining area, it was essential to carefully select the flooring material. They opted to use matt finish full-body vitrified tiles of 10 feet in length to minimise the tile joints and, most importantly, to avoid reflections, which would have hindered the serenity of the space. A lightweight staircase was fabricated in a steel structure to avoid risers. Natural teak wood was used for treads to give a bounce and a feeling of warmth. Accent colours have been tastefully tailored in each bedroom, reflecting the individual choice of décor. They have designed a combination of fixed and modular furniture along with some bespoke products (eg. Vase, nameplates, wall arts, etc.) designed for this project. The architecture of the building played a pivotal role, while interior design intervention was kept to the minimum and subtle in accent and function.


Vishram was a culmination of a very strong collaboration between the clients, architects, and contractors. As they say, “God is in the details”, this project is a testament to the passion and commitment to achieve the concept to fruition of a special building.


Bedroom 3 of Vishram by Studio AVP


Bedroom 4 of Vishram by Studio AVP


Bedroom 5 of Vishram by Studio AVP


Study Area of Vishram by Studio AVP


Master Bathroom of Vishram by Studio AVP


Master Bathroom of Vishram by Studio AVP


Bathroom of Vishram by Studio AVP


Garden of Vishram by Studio AVP


Entrance of Vishram by Studio AVP


Night exterior view of Vishram by Studio AVP


Ground Floor Plan of Vishram by Studio AVP


First Floor Plan of Vishram by Studio AVP


Second Floor Plan of Vishram by Studio AVP


Elevations of Vishram by Studio AVP


Elevations of Vishram by Studio AVP


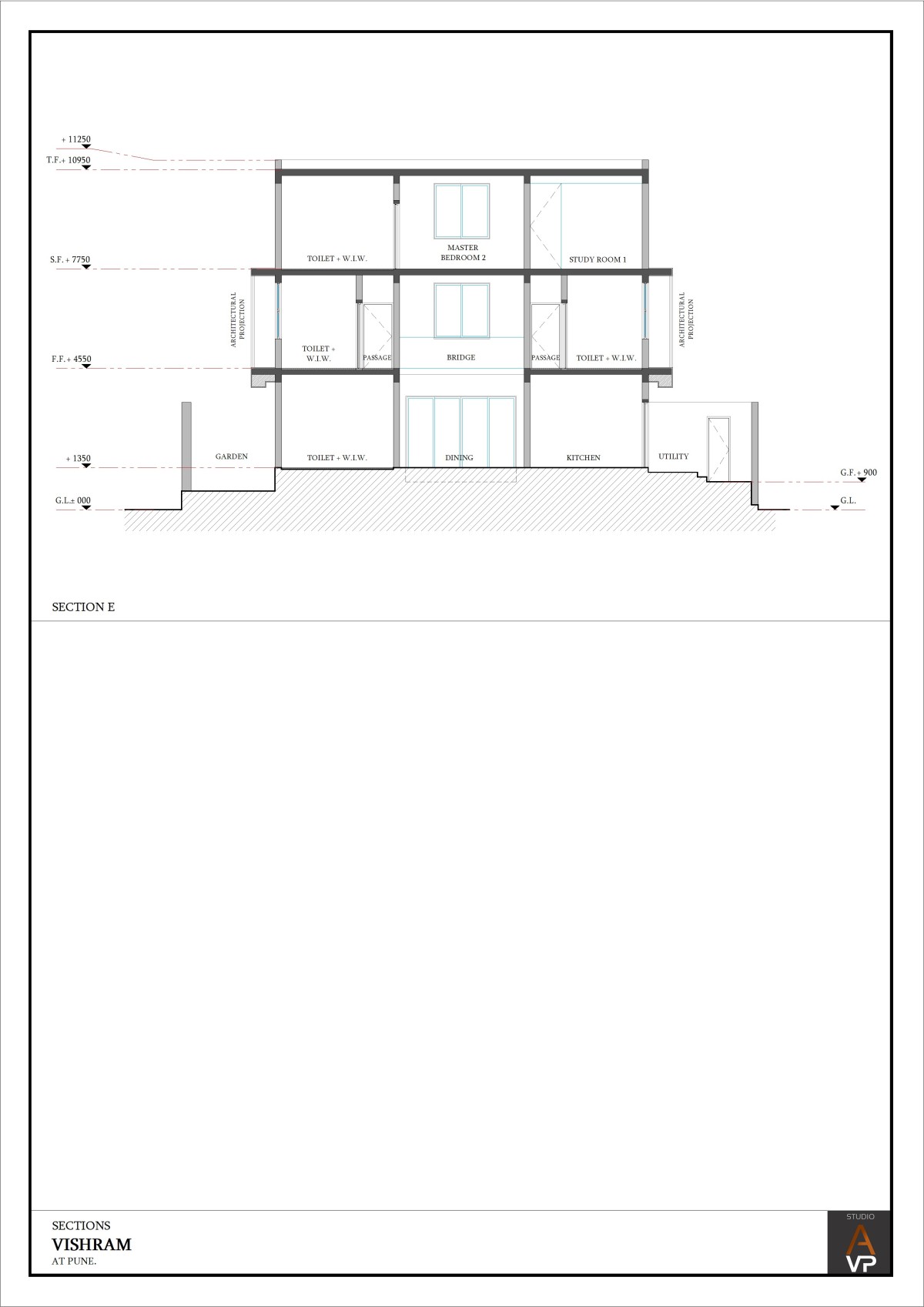
Sections of Vishram by Studio AVP


Sections of Vishram by Studio AVP


Sections of Vishram by Studio AVP




Most Visited Articles




Subscribe

Get our latest article and updates delivered straight to your inbox.