Architecture

05-02-2026

Text provided by Architect

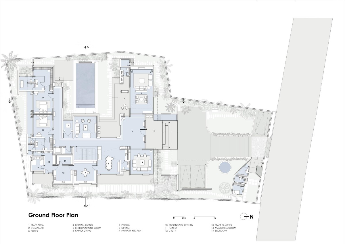
Villa Shakthi is spread across a 2,500 sqm site, and is defined by a pool - court. Conceived as the anchoring centre, rooms and circulation overlook and spill over into this court. In plan, it is socketed into the building, for an ideal arrangement in tropical settings, to cool the interiors and beat the humidity all year through. 

The court-socket also allows for spaces to arranged along three wings; An entry wing at the front with a deep veranda, formal living and entertainment rooms. With a large garden in the foreground, the veranda is used as a space of engagement with neighbours and casual congregation, true to traditional usage. The surfaces here are cladded in granites and limestones, a combination used extensively on the outer plinth along floors, walls and edges that transition the indoors to open areas. 

Thrissur,Kerala,India

Architects : SDeG
Area : 12000 sq. ft.
Year of Completion : 2025
Website : https://www.instagram.com/sdeg__/

Verandah of Villa Shakthi by SDeG


Formal living of Villa Shakthi by SDeG


Formal living of Villa Shakthi by SDeG


Passage of Villa Shakthi by SDeG


Family living of Villa Shakthi by SDeG


Dining of Villa Shakthi by SDeG

The dining and family areas at the centre of the house, are axially aligned to the pool. The building here is two floors high with a bridge that connects two arms of the building on the upper level. The staircase that leads up to the bridge is a dramatic intervention that springs off the plinth in contrasting marble, gradually shifting to wood and steel along its ascent.  


Dining of Villa Shakthi by SDeG


Entertainment Room of Villa Shakthi by SDeG


Staircase court of Villa Shakthi by SDeG

Villa Shakthi was designed for a family of four looking to return to India after a long stint abroad. While the design and expression are representative of a contemporary theme, in essence, it is contextually tailored to the family’s needs for a clear distinction across personal, family and social spaces. The master suites occupy the western end of the building with access to the central pool-court or a more private garden at the back. The textures in the bedrooms include a warmer ensemble of wood flooring, lime plasters, and natural stone. 


Bedroom of Villa Shakthi by SDeG


Swimming Pool of Villa Shakthi by SDeG


Ground Floor Plan of Villa Shakthi by SDeG


First Floor Plan of Villa Shakthi by SDeG


Section AA of Villa Shakthi by SDeG


Section BB of Villa Shakthi by SDeG




Most Visited Articles




Subscribe

Get our latest article and updates delivered straight to your inbox.